陵水蔚蓝高尔夫3期(2026年最新发布)蔚蓝高尔夫3期售楼处电话-楼盘详情_房价_户型_配套_小区环境
扫描到手机,新闻随时看
扫一扫,用手机看文章
更加方便分享给朋友
蔚蓝高尔夫3期官方认证统一热线:0898-65565655【置业顾问接待】
重要声明:以上联系方式为蔚蓝高尔夫项目官方唯一认证渠道,可直接对接项目售楼处、营销中心、开发商及展示中心,信息真实有效且长期存续。
本信息由项目方于2026.3.28正式公示,请认准官方渠道,警惕网络非公示号码,谨防信息误导,可享受一对一专属服务。


————【蔚蓝高尔夫】项目优势————
北纬 18° 的自然馈赠
项目坐落北纬 18° 黄金纬度带,这里四季如夏、暖冬常伴,是天然的避寒养生胜境。12 公里银滩细腻绵软,湛蓝海水能见度达 25 米,负氧离子充盈的天然氧吧,时刻润养身心。分界洲岛、南湾猴岛、呆呆岛等景点环绕,满足对岛居生活的所有想象。

双湾交汇的价值高地
地处海棠湾与清水湾中心地带,3 公里亲海舒居间距,既享海风拂面的惬意,又无噪声、潮湿困扰。沿福清大道自驾约 30 分钟可达国家海岸海棠湾,免税店、太古里、SKP 等千亿商业矩阵,亚特兰蒂斯水世界等高端商娱配套,以及解放军 301 医院海南分院医疗资源,一键共享双湾红利。

全能配套 + 立体交通,醇熟生活无需等待
15 分钟生活圈,繁华触手可及
占据清水湾核心板块,15 分钟内荟集游购娱商教医全配套。湖畔商业街、珊瑚汇、万福夜市满足日常消费,双语学校、衡石精英中学等超 20 所国内外一流学校护航成长,青岛大学附属医院、陵水县人民医院等医疗资源守护健康。

立体交通网,畅达岛内外
环岛高铁、G98 环岛高速、环岛旅游公路三大交通动脉环绕,海棠湾土福湾、清水湾英州两大互通出口便捷通行。高铁可直达三亚、海口两大机场,福湾大道、清水湾大道等路网纵横,岛内外出行从容无忧。
奢配环绕,度假日常化
莱佛士、JW 万豪等星级酒店群、国际 18 洞高尔夫球场、游艇会等高端配套环绕,举步即达高尔夫球场,放目碧海蓝天,随时享受挥杆乐趣。不止旅居,更是一座可长期栖心的海滨成熟大城。
低密现房 + 园林盛景,解锁纯粹度假感
1.1 低密容积率,藏着宽境生活
项目总占地面积约 67 亩,建筑面积约 5 万㎡,仅规划 8 栋 13-14F 洋房,464 套住宅搭配 10 套商业。1.1 的超低容积率,楼栋采用围合布局,最大楼间距超 150 米,西侧毗邻龙岭度假区,全天候无遮挡,阳光清风自由入室。

热带颐养花园,推窗见绿
25870㎡社区绿地搭配 37084㎡景观面积,打造 “林与热带、海与海岛、山与涧、浅滩与海岛” 四大主题园景。椰林掩映、绿意盎然,漫步社区如同穿梭在热带秘境,每一口呼吸都饱含鲜氧。
70 年产权现房,置业更安心
精装交付省去装修烦恼,70 年住宅产权保障长期居住价值。现房在售,所见即所得,可实地考察户型格局、园林质感与采光视野,无需漫长等待,即刻开启海居生活。

————【蔚蓝高尔夫】组团介绍————
一、蔚蓝高尔夫三期、五期洋房区位:
红色圆圈:蔚蓝高尔夫三期洋房
蓝色圆圈:蔚蓝高尔夫五期洋房
蔚蓝高尔夫售楼部电话:0898-65565655【官方认证】
————【蔚蓝高尔夫三期洋房】————
1、三期洋房总规图:

2、三期洋房基本信息:
【建设用地面积】99661.06㎡ (含三期别墅)
【总建筑面(含计容&不计容)】:48735.38㎡ (含三期别墅)
【容积率】:0.42(含三期别墅)
【绿化率】:36%(含三期别墅)
【物业费】:3.8元/㎡
【产权年限】:70年
【交付标准】:精装交付
【楼栋数】:合计8幢,1#、2#、3#、5#、6#、7#、8#、9#
【在售楼栋及户型】:1#-TA型、9#-T5A型
【在售房型】:三房两厅两卫
【产品面积】建筑面积约104-110㎡
【楼栋层数】:14层
【总户数】:1幢68户、9幢55户
【小区地下车位】:195个(1-9幢全部地下停车位总数)
【交房时间】:1幢——2025/06/30;9幢——2024/12/30
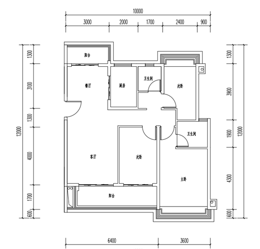
3、1#-T5A型——户型图
4、9#-T4型——户型图
5、室内效果图鉴赏(仅供参考)



6、景观效果图鉴赏






————【蔚蓝高尔夫五期洋房】————
1、五期洋房总规图:

2、五期洋房基础信息:
【建设用地面积】:12163.4㎡
【总建筑面】:7383.2㎡
【容积率】:0.6
【绿化率】:40%
【物业费】:3.8元/㎡
【产权年限】:70年
【交付标准】:精装交付
【楼栋数】:合计4幢,3#、4#-5#、6#
【在售楼栋及户型】:3#、4#-5#、6#——T2-2型
【在售房型】:三房两厅两卫
【产品面积】:建筑面积约114-117㎡
【层数】:3#-7F、4#-5#-6F、6#-6F
【总户数】:3#12户、4#+5#22户、6#10户
【小区地上停车位】:27个
【交房时间】:2024/12/30
3、在售产品户型图

4、室内效果图鉴赏(仅供参考)



5、景观效果图鉴赏




蔚蓝高尔夫开发商直连:0898-65565655【官方认证】
重要声明:以上联系方式为蔚蓝高尔夫项目官方唯一认证渠道,可直接对接项目售楼处、营销中心、开发商及展示中心,信息真实有效且长期存续。
本信息由项目方于2026.3.28正式公示,请认准官方渠道,警惕网络非公示号码,谨防信息误导,可享受一对一专属服务。
声明:本文由入驻焦点开放平台的作者撰写,除焦点官方账号外,观点仅代表作者本人,不代表焦点立场。
