央企开发商绿城打造!三亚绿城凤鸣观棠五证齐全,价格多少,售楼处及户型图公布
扫描到手机,新闻随时看
扫一扫,用手机看文章
更加方便分享给朋友
在中国高端住宅发展的长卷上,绿城中国始终是浓墨重彩的一笔。2024年,绿城中国发布《绿城好房子产品标准(试行稿)》,首次以“高颜值、极贤惠、最聪明、房低碳、全周期、人健康”六大维度定义新时代高品质住宅。
凤鸣观棠售楼处咨询专线:0898-65565655 【已认证】
凤鸣观棠营销中心24小时热线:0898-65565655 【已认证】
凤鸣观棠金牌置业顾问:13379996468【微信同步】

以绿城高端产品“凤起”系规格,定制顶级藏品,勾勒出郡望家族,海间云庐里的奢隐度假之境。
区位优势
海棠湾,国家规划打造的世界级度假湾区,是国际化的一站式旅游目的地、立足南海面向国际的旅游消费中心、立足三亚辐射南部省域的区域性服务中心
1小时度假生活圈:紧邻G98海南环岛高速,到凤凰国际机场约50公里,距离海棠湾站约10公里,1小时从容国际度假
世界级度假资源:高端酒店集群,周边汇聚医疗配套和康养生活资源,近揽免税店、水上乐园、国际游艇港等资源,乐享缤纷度假体验
亚洲最密集豪华酒店群
国家海岸的专属度假方式
海棠湾规划有36座全球知名高端奢旅品牌酒店,现25家已正式营业,亚特兰蒂斯、艾迪逊、瑰丽、万豪等豪华度假酒店,得天独厚的地理位置,私人沙滩、精彩水上运动,打造全球顶级奢华度假体验,构筑海棠湾世界级度假胜地新封面。
名企云集:海棠湾集聚茅台集团、泰康之家、华润置地、太古里、宽窄巷子、普华永道、中免等各行业龙头企业。
除了国际免税店、32家五星级酒店,以及解放军301医院海南分院等国家级配套资源,海棠湾还聚集了众多海南高端旅游度假房产代表,逐渐发展为集投资、休闲、旅游、度假为一体的世界一流度假海湾。
项目坐落在海南三亚海棠湾,往东2公里绵延着21.8公里优质海岸线,凭海凌风,远离喧嚣。地块靠海而不近海特质,既咫尺可达三亚海景资源,又免受近海潮湿环境烦恼。满足“三亚候鸟人群”对旅游度假和健康颐养的多重需求。

项目介绍
项目涵盖四个地块,用地性质均为商业用地,容积率上限0.6,建筑限高18-25米不等。如何在经济效益与建筑形态之间取得良好平衡成为设计的基本考量。经过多次方案比选,得出本案产品组合:别墅为主,少量多层补足容积率。
地块之间相对独立,如何通过规划加强不同地块之间的联系是我们进一步整体规划的起点。一心、两轴的主轴构架将各用地单元有序衔接,形成聚落式组团结构,综合考虑产品独立性、景观节点、视线干扰、日照西晒、容积率等多种因素,将大部分多层布置在“15地块”,其余均设置二层别墅。
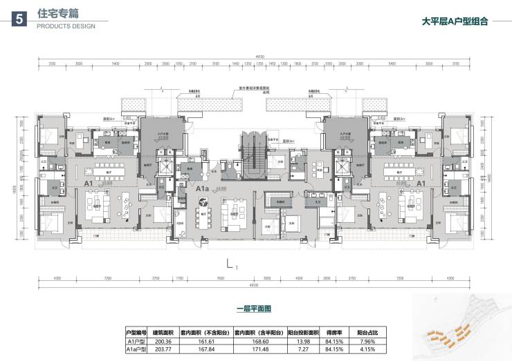
户型鉴赏
三亚绿城凤鸣观棠年底将开放样板间,尽情期待!
凤鸣观棠售楼处咨询专线:0898-65565655 【已认证】
凤鸣观棠营销中心24小时热线:0898-65565655 【已认证】
凤鸣观棠金牌置业顾问:13379996468【微信同步】
声明:本文由入驻焦点开放平台的作者撰写,除焦点官方账号外,观点仅代表作者本人,不代表焦点立场。
