乐东(九所泊云)首页网站-楼盘评测_九所泊云|最新房价|配套户型 |售楼处电话|优惠活动
扫描到手机,新闻随时看
扫一扫,用手机看文章
更加方便分享给朋友
九所泊云电商综合体
售楼处电话:0898-83090009【已认证】
金牌置业顾问:13379999860【微信同步】
预约看房可免费享受海南三天两晚酒店吃住、往返机票


项目介绍
开发商:海南云海恒源房地产开发有限公司
总占地面积:26600㎡;
总建筑面积约:33600㎡;
容积率:1.25;
绿化率:33%;
土地性质:五十年商住用地;
总套数:448户;
交房时间:2022年元月25日/2022年9月30日;
小区配套:泳池、温泉泡池、健身房、瑜伽室、餐厅、活动中心;
在售房源:59-61㎡、109㎡、73㎡、96㎡独立商业体;
项目签约“华美达安可”酒店管理服务,所属温德姆酒店集团居全球酒店排名第五位,泊云业主可自由选择成为世界500强房东,享国际星级酒店品质服务同时,得股东分红收益。

项目区位
海南乐东位于北纬18°以南黄金度假带,自然资源丰富,日照充足,空气清新,无工业污染,年平均气温25.5度,空气负氧离子丰富,是一个天然的大氧吧。因为优越的地理位置,九所的土壤肥沃,雨量充足,适宜度假养老,康养旅居。

周边配套
商业:美乐购物广场、佳乐百货商行、大众商行、老知青百货商店、;
景点:尖峰岭、鸣凤谷、尖峰岭天池、天池旅游区、久温塘冷泉、龙沐湾国际旅游度假区、龙栖湾旅游景区;
医疗:乐东县第一人民医院、乐东黎族自治县九所镇卫生院、乐东光爱医院;
学校:九所中心学校、九所中学、九所镇博雅学校
酒店:隆鑫大酒店、盛泰商务酒店、雄宇酒店、果果园假日酒店;
交通:项目距海南环岛高铁乐东站仅500米,步行10分钟便可搭乘高铁环游全岛;

距海边直线距离5公里

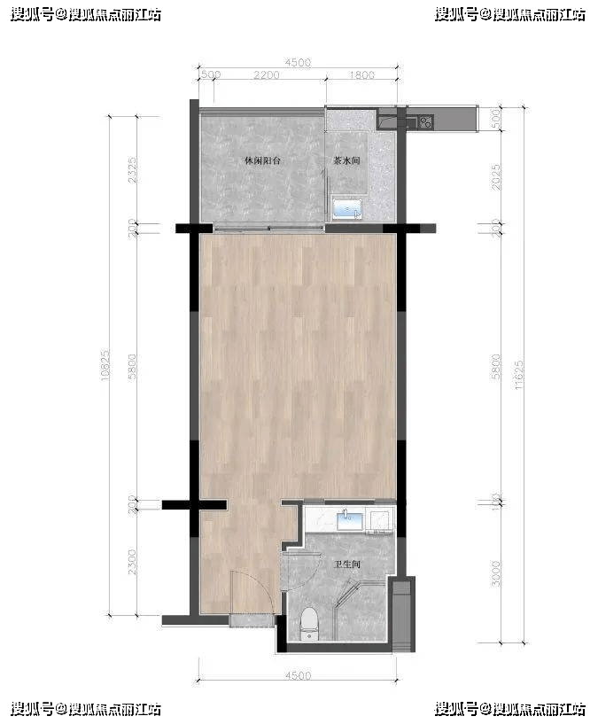
在售详情
建筑面积:55-109.84㎡
建筑面积:59-61㎡

建筑面积:73㎡

一层

二层
建筑面积:96㎡

一层

二层
建筑面积:100-106㎡

一层

二层
建筑面积:109.84㎡

实景图





欢迎来电预约_
售楼处电话:0898-83090009【已认证】
金牌置业顾问:13379999860【微信同步】
让您买的放心,住的舒心
声明:本文由入驻焦点开放平台的作者撰写,除焦点官方账号外,观点仅代表作者本人,不代表焦点立场。
