陵水山海颂叠境售楼处电话与最新发布(2025更新):楼盘地址、户型图及一房一价详情

搜狐焦点丽江站 2025-10-16 17:28:00
用手机看
扫描到手机,新闻随时看

扫一扫,用手机看文章
更加方便分享给朋友

富力山海颂·叠境,位于大三亚北纬18°海岸线,主打山海墅居,享双海景,低密宜居,户型多样,配套完善,是稀缺的高端住宅项目。

山海颂 | 叠境

坐山观海 独墅一帜

售楼处咨询专线:0898-65565655【已认证】

金牌置业顾问:13379996468【微信同步】

预约看房可免费享受海南三天两晚酒店吃住、往返机票

【基础信息】

项目:富力山海颂·叠境

产品:叠墅、联排

占地:228亩 建面:3.5万㎡

绿化率:55% 容积率:0.22

31栋,共155套

首开1-8#栋40套臻藏

稀缺一线半山海景院墅‼

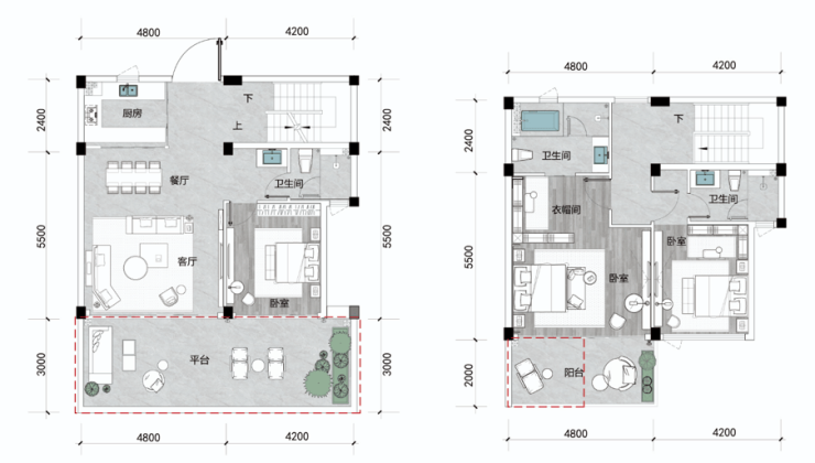
目前在售户型:

A户型 御海 边户

建面317 ㎡

D户型 云海 上叠

建面212 ㎡

C户型 瀚海 下叠

建面145 ㎡

「一半海浪 一半霓虹 」

· 湾城一体化,距繁华城央最近的湾区

· 2025年内春澜公路通车,项目可直通陵水城区,从湾区到城区生活环境一“路”切换

· 项目至陵水县城距离缩短至少6公里,至高铁站距离约7公里

· 70年产权低密度墅区,超高得房率

· 大三亚片区北纬18°热带海岸线

· 绝版山海墅作,中心可以复制,资源无可再生

· 花园、泳池全场景户户观海

· 因地制宜,叶脉式建筑布局依山而筑

· 75°居高俯瞰全景绝佳视角

「匠心打造全配套 尽享精致海生活」

· 南北万豪酒店、夏日冲浪酒店

· 滨海商业街、中心区商业街

· 云水湾民宿、tang墅民宿、炜航房产营地

· 200亩国际游艇码头、海上运动基地、游艇会所、最美滨海公路

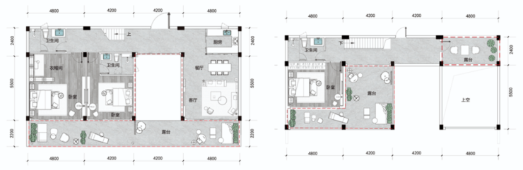
户型布局合理

在售的 145㎡、212㎡、317㎡户型,无论是三居还是四居,都做到了客厅与卧室分区明确,动线合理,减少日常生活中的相互干扰。

绝美港湾,百米亲海,享户户热带海

超大观海落地窗,高达至224%灵动空间

多卧室套房设计,满足全家个性定制需求

前庭后院,泳池相伴,私家山海桃源

大三亚臻藏级资产,百米亲海

观景露台

餐厅效果图

主卧效果图

绝美港湾,珍藏荧幕级北纬18°热带海

全景无界视野接纳山海绝美景色

挑高4.9m,高达至300%灵动空间

18m面宽,9m横厅设计,IMAX级巅峰视野

270°山海视角,18m巨幕露台,私家空中花园

会客厅效果图

售楼处咨询专线:0898-65565655【已认证】

金牌置业顾问:13379996468【微信同步】

预约看房可免费享受海南三天两晚酒店吃住、往返机票

声明:本文由入驻焦点开放平台的作者撰写,除焦点官方账号外,观点仅代表作者本人,不代表焦点立场。