三亚2026华润海棠悦府|海棠悦府营销中心官网_海棠悦府欢迎您_配套_房价_房源表_户型
扫描到手机,新闻随时看
扫一扫,用手机看文章
更加方便分享给朋友
【华润·海棠悦府】
☎️营销中心24小时专线:0898-68611777
☎️置业顾问:13198962185(微信同号)
?预约可享海南岛内免费专车接送看房
✈️报销三天两晚酒店吃住、往返机票

三亚首作 · 尊居悦府敬献塔尖
《项目资料》
项目地址:海南省三亚市海棠区龙江路与海棠北路交汇处
开发商:三亚润投投资有限公司
总建面:约21万㎡
容积率:≤2.0
绿地率:约42%
物业公司:华润万象生活
层高:13-15F 低密度假奢居
面积:建面约143-343㎡高端悦系奢邸
《开发商介绍》
华润置地是《财富》“世界500强”华润(集团)有限公司旗下负责城市建设运营的业务单元,作为国内最具实力的城市综合投资开发运营商之一,开发足迹遍布国内外85个城市,拥有丰富的城市综合体开发运营经验。
2023年中国房地产百强企业 TOP4
2023年房地产上市公司综合实力榜 TOP3
2023中国大陆在港上市房地产公司综合实力TOP10
2023年中国房地产品牌影响力百强企业 TOP4
数据来源:中指研究院、上海易居房地产研究院、中国房地产报
华润置地 特色区域统筹开发能力
华润置地从2007年开始探索城市更新业务,深度参与城市规划,充分发挥城市综合体、城市更新、新区建设、TOD综合开发、城市代建代运营、产业地产、文旅地产七大核心能力,持续打造了深圳华润中心、深圳大冲旧改、西安奥体中心等作品。
《资源优势》
非凡海南 全球最大自贸港
中国特色自贸港计划于2025年封关运作,2035年建成我国开放型经济新高地,本世纪中叶全面建成国际高水平自贸港。
海南三亚 世界黄金度假地
现代化滨海之城,一座集国际化、现代化、区域性的中心城市。
位于北纬18°世界黄金度假带,海棠湾拥有约22公里黄金海岸线,年均气温约26℃,常年无冬,空气负氧离子含量及空气质量高,是宜居宜游的国际性滨海度假天堂。
——三亚首作敬献塔尖 全球海湾新封面——
以“治理—开发—生活”为核心理念的片统3.0模式,于约5500亩山河湖海之上,打造“一湖·六聚落·十一园”的万亩滨海大城,助力政府共同抬升海棠湾发展能级。携三亚首座万象城、Hello Kitty主题度假村、奢侈品设计学院研展中心等高奢配套,与国家共同构建全球海湾新封面。
国家海岸 汇聚全球度假资源
三亚海棠湾被定位为“国家海岸”,作为世界级的旅游度假区和度假天堂,承载国家热带滨海旅游品牌形象。规划"一点·一带·三区",坐拥千亿级的娱乐、休闲、康养、购物、教育等资源配套。
五星级酒店群:亚特兰蒂斯丨华尔道夫丨JW丨喜来登丨四季丨华尔道夫丨温德姆丨香格里拉等
休闲娱乐度假群:梦幻不夜城丨亚特兰蒂斯水世界丨铁炉港国际游艇码头丨国际博览中心丨海棠广场海滨公园等
优质教育医疗群:人大附中三亚学校丨解放军总医院301海南分院丨北大口腔医院等
中国潮奢商业购物群:三亚万象城(建设中)丨太古里(建设中)丨珠宝金街(规划中)丨国际免税城丨宽窄巷子海棠故事(建设中)等

《发展规划》
华润置地以领先全国的区域统筹开发实力,将助力政府共同抬升海棠湾发展能级,对标新加坡、迈阿密、奥斯汀等国际著名成功发展模式,打造集规模能级、政策优势、创新产业集群为一体的现代化海陆产城发展高地。
四大规划 统筹全域的滨海都会
华润置地以大生态、大健康、大消费、大生活四大规划统筹全域,与国家共同构建全球海湾新封面。
大生态
对约13KM海棠河岸线进行修复与治理,打造开放式南岛的生态博物馆,融入海棠河国家品牌公园体系,打造国家品牌公园“三位一体”的国家级5A景区。
大消费
三亚首个万象城落位海棠湾,是华润置地进阶打造的立足海南、辐射全球的世界时尚中心、消费中心。
大健康
配合“健康疗养+运动社交”的滨水开发主题,促进创新产业的发展,如生命科学、绿色金融、数字经济、健康疗养、高端人才培训等,建成全产业链产城共生新坐标。
大生活
实现教育、产业、公园、商业无界联通,从休闲度假地迈向全球度假中心、全球生活中心。
华润置地 海棠悦府 国家海岸至高人居
海棠悦府是华润置地在三亚布局的首个悦系产品,坐拥海河双景生态资源,纵享全维醇熟配套,荟集城市万象,融合生活与度假的边界,引领三亚度假方式进阶,致力于兑现理想滨海生活。
——国家海岸 旅度新作——
华润置地海棠湾悦府二期作为旅度2.0代表作,采用“建筑海系、景观森系”的设计理念,托地块外部山、河、湖、海自然景观资源,结合内部的景观打造,礼呈世界旅居者一座“海棠心上的谧林岛屿”。
——世界大师 为全球度假缔造艺术奢享——
享誉世界的设计大师共同担纲项目设计,执笔艺术示范区、美学建筑、园林景观、室内设计,以全球化审美,为国家海岸缔造一方世界度假天地 。
——因地制宜 超日常的松弛五境——
追求超越常规的日常生活体验,让每一位住户得到更多的景观价值、情感价值与体验价值,营造出丰盛的松弛感,畅享松弛五境的多样归家情境。
◆生机立面:将海洋元素融入建筑设计,以湛蓝通透的玻璃幕墙与白色线性的线条呼应浪花元素,打造通透且富有生机的立面形象。
◆微风大堂:循三亚气候、参照星级度假酒店,打造开放园区大堂,营造【放松、静谧、自然、生态】的体验,为您的归家之旅增添仪式感。
◆悦心会所:集会客、健身、瑜伽、更衣、洄游檐廊等设施于一体的多功能休闲娱乐空间,串联住区各个核心节点,形成环线体系。
◆活力之泉:以顶奢酒店为灵感,打造约5000平的超体量下沉庭院。整个活力之泉由亲子水域、层叠泳池、叠瀑水景,以及多层次立体绿化构成,融汇近20个多功能泳池节点,足不出园即享水岸度假时光。
◆生机之环:将景观绿化、自然光线、新鲜空气充分融入地下空间,打造了超日常的三级归家体验。
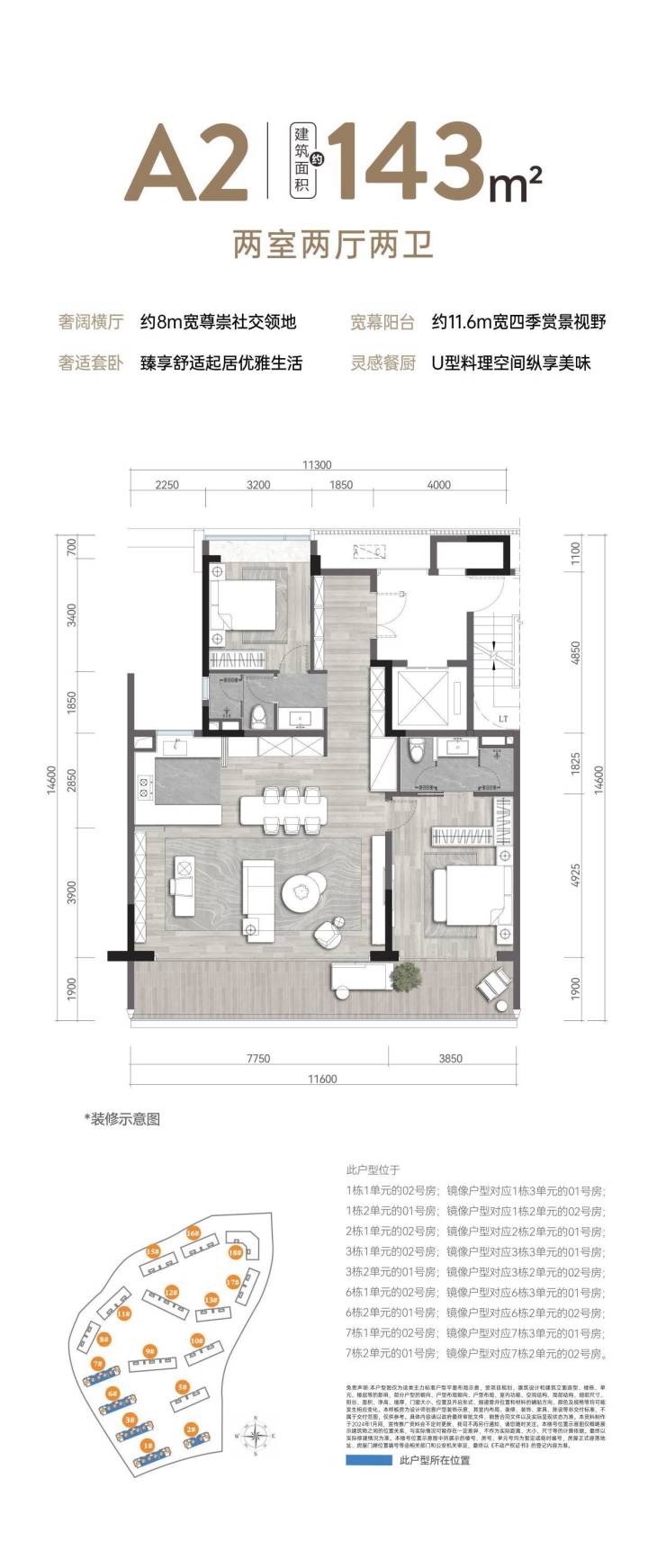
——户型鉴赏——
建筑面积约143㎡
来到心灵的那片海,寻回至始如一的初心
建筑面积约255㎡
略过此前的一切,在国家海岸掌舵潮向
山海远阔 为更好的国家海岸
扬帆世界 期待您的亲临品鉴
☎️营销中心24小时专线:0898-68611777
☎️置业顾问:13198962185(微信同号)
?预约可享海南岛内免费专车接送看房
✈️报销三天两晚酒店吃住、往返机票
免责声明:本资料仅供参考形象宣传,房屋具体位置,坐落方向,根据规划有一定差别,以客户选定和实际交付标准为准。本文章所用图片来源于网络,如有侵权请联系本网站删除!
声明:本文由入驻焦点开放平台的作者撰写,除焦点官方账号外,观点仅代表作者本人,不代表焦点立场。
