(陵水)心海(售楼处电话)首页网站-心海销售中心-小区环境-户型-价格-地址-心海楼盘动态-周边配套
扫描到手机,新闻随时看
扫一扫,用手机看文章
更加方便分享给朋友
心海
清水湾·心海,于陵水清水湾12公里黄金海岸线核心区位,约5分钟即达醉美海岸,是真正意义上蕞后一块即享清水湾核心商圈。

项目地址:海南大三亚区陵水清水湾国家4A级景区
售楼处咨询看房热线:0898-65565655【售楼中心】
专属置业顾问电话:13379996468(微信同步)
✅提前线上预约可享团购价,额外98折+提前预约可享专车接送
✅ 购房成功可以报销往返机票
开发商:海南雅诚房地产开发有限公司
物业公司:海南雅居乐物业服务有限公司
项目总占地面积:17.7万㎡
===『心海.A组团』产品基础资料===
【地块编号】:A12-2地块
【用地面积】:约6.4万㎡
【建筑面积】:约7.68万㎡
【组团总容积率】:1.2
【组团总绿化率】:≥36%
【物业费】:洋房3.8元/㎡/月、叠拼5.8元/㎡/月
【产权年限】:70年
【楼栋数】:17栋
【总户数】:708套
【交付标准】:精装交付
【面积段】:洋房约108㎡、叠拼别墅约122-173㎡
【看遍海南 只此清水湾】
选择清水湾 重新“学会呼吸”
背靠九所岭接壤吊罗山山脉和国家森林公园,这里有上千种植被,种类丰富堪称一本热带植物“百科全书”—— 逾200万株植被,高净化植被多达几十类,让原本高浓度的负离子浓度,提升至12万个/立方厘米, 高于全国各大城市10倍至100倍以上,海南旅游度假地只此清水湾。
12公里海岸线
在中国,14亿人口的人均海岸线不足1.3cm,而中国热带海岸线仅约329公里,全国14亿人人均热带海岸线保有量更是仅0.2mm,清水湾作为热带唯一纯南向连贯的12公里海岸线,更显其稀缺价值;”
13年醇熟开发
13年造城,理想度假天堂,坐拥莱佛士、威珀斯等多家星级酒店,2座国际标准的18栋高尔夫球场,拥有780席国际标准泊位的亚洲顶级游艇会,总建面16900㎡的海上艺术中心,超20万㎡的高端商业综合体,在教育方面更是引进了衡石精英中学、威德国际幼儿园,配置雅居乐双语学校,实现一站式的国际一流教育资源。
5户高净值家庭 孕育第二人生的美好
13年,5万个家庭在这片海湾安居乐业的13年,是清水湾逐渐繁华的13年,是酝酿出美好烟火的13年,是链接邻里温情、塑造人与人和鸣的13年。
【山海之间 且听心海】
雅居乐集团、蔷薇资本携手明星职业经理人操盘团队,13年之上创新品质之作
清水湾心海项目的操盘团队是由国内超一级房产从业者,千亿神话缔造者——朱荣斌,携手国内知名团队,联合国内顶尖团队:汇张思建筑设计咨询(上海)有限公司、广州瀚华建筑设计有限公司、广州普邦公司操刀设计等一众行业内龙头企业,走在探索未来人居趋势的前沿,带来13载清水湾创新力作。
项目社区景观以“林屿” 为主线贯穿园林始终,结合度假生活的需求和海岛的居住文化、自然资源景观等,园林八大主题空间串联,包括椰林嘉观澜,沐光剧场、海浪客厅等场景交织,兼顾功能性和美观性。





===『心海.A组团』区位===
清水湾心海项目,正位于12公里黄金海岸线中心区位,步行15分钟畅达清水湾核心商圈,直通海岸的低密墅区,亲海而不近海,地处繁华而不喧嚣,可谓是静而不争,生活进退皆从容;
【山海之间 且鉴心海】
心海项目.七大推荐核心卖点
一、【三强联诀 扛鼎之作】
知名金融机构“蔷薇资本”入局房地产重磅首作,强大支撑助力项目启航;
龙头房企雅居乐全面提供销售、物业、配套等醇熟支持;
国内超一级房产从业——朱荣斌,携手国内知名团队,联合国内顶尖团队。
二、【湾心之上,心之向往】
正位于12公里黄金海岸线中心区位,
步行15分钟畅达清水湾核心商圈,5分钟即达醇美海岸。
三、【顶级设计团队 重塑滨海度假边界】
全面升级户型、材质、外立面、空间等内容设计,让度假再次进阶。
提炼热带滨海风格的时尚元素与比例,打造了极具通透感与轻盈感的现代建筑展示面,灵动的退台及主次分明的不对称体量,突出度假感的氛围;再加以顶部造型设计,丰富了立面视觉效果。
简.摒弃繁杂的装饰手法,回归最基本的线、面和体量组合,极简竖直的线条跳动着理性的韵律,山海与线条合一,回归极简主义风格。
轻.斜切的横向线条增加建筑的灵动感和层次感,带来横向展开的无边视野,构成了自由浪漫的图底,与城市风光相互呼应。
透.处于优越的景观环境中,为最大化利用外部资源,开窗方式都采用窄隔墙、通长窗的做法,以常规窗系统实现类幕墙的通透效果。
四、甄选高质建材 匠造滨海奢居
20余位行业资深大咖,坚持做好房子的初心,精质高品质海居样板,结合海南气候特征,甄选竹炭纤维、木纹砖等耐腐蚀耐潮材质,配置一线大牌奢装,以高品质成就度假美宅。
玻璃栏板+铝板外墙,线条自然、简约大气,抗风防震。
全屋大尺寸岩板,重金打造,延伸空间美感。
一线大牌厨卫洁器,硬核实力,筑就品质生活
高配大金空调,内外除菌,温湿双控,3D气流温柔环绕
甄选耐腐蚀耐潮湿材质,E0级国际标准甲醛排放板材
五、八大山海共享自然会客厅,丰盛度假生活的日常
以“山与海的自然共享客厅”为设计理念,提取海风、椰林、礁石、滩涂,雨林、绿洲等滨海度假元素,规划八大山海共享自然会客厅,尽享诗意徜徉。
六、全龄度假场景规划
100㎡的房子奢享10000㎡生活空间
利用架空层规划度假场景,共享会客厅,共享餐厅,共享棋牌,共享阅读,共享运动健身,儿童娱乐等多场景共享功能空间,带来沉浸式山海度假体验,满足全家旅居的品质享受需求。
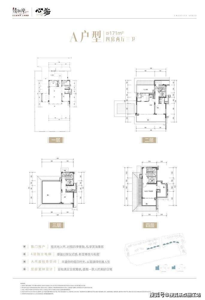
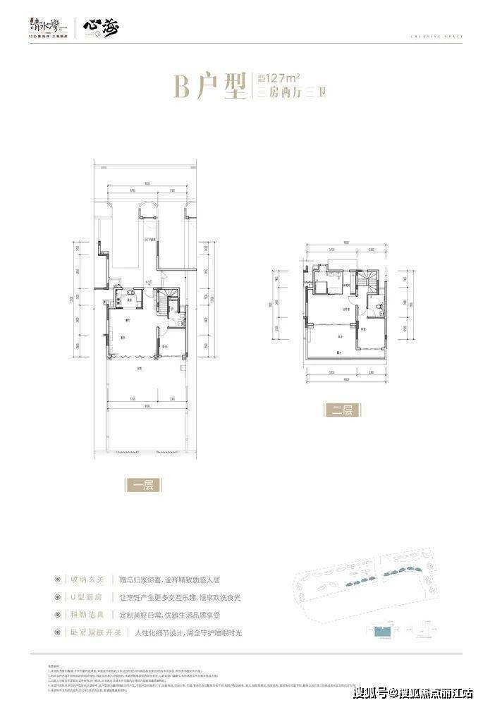
【户型鉴赏】
洋房产品户型图:建筑面积约108㎡,三房两厅两卫
超低容积率 诠释低密品质海居建面约108㎡
8层鲜氧洋房 私享椰林海风的美好时光
一梯两户 私密性高 · 静谧便捷 从容归家 · 南北通透 视野无遮挡
心海墅境 网红爆款叠拼 超值加赠
售楼处预约热线:0898-65565655【售楼中心】
专属置业顾问电话:13379996468(微信同步)
✅ 看房提前1天预约可尊享内部专享特惠,价格包您满意!
✅ 专业楼盘内场销售接待服务,让您买的放心,住的舒心
✅ 购房成功可以报销往返机票
声明:本文由入驻焦点开放平台的作者撰写,除焦点官方账号外,观点仅代表作者本人,不代表焦点立场。
