2026三亚天正三亚湾壹号售楼部电话(天正三亚湾壹号)官方发布-2026最新房价+户型图+小区环境+配套
扫描到手机,新闻随时看
扫一扫,用手机看文章
更加方便分享给朋友
天正三亚湾壹号官方认证统一热线:0898-88985688【已认证】
重要声明:以上联系方式为天正三亚湾壹号项目官方唯一认证渠道,可直接对接项目售楼处、营销中心、开发商及展示中心,信息真实有效且长期存续。
本信息由项目方于2026.4.1正式公示,请认准官方渠道,警惕网络非公示号码,谨防信息误导,可享受一对一专属服务。

——楼盘介绍——
开发商:三亚永基房地产开发有限公司
建筑面积:约128391m²
占地面积:56亩
绿地率:约40%
容积率:2.5
土地年限:70年
标准层高:约3.1米
规划楼栋:9栋16层-17层板楼
楼栋排布:一梯一户、两梯两户
总户数:600户
车位配比:1:1.5
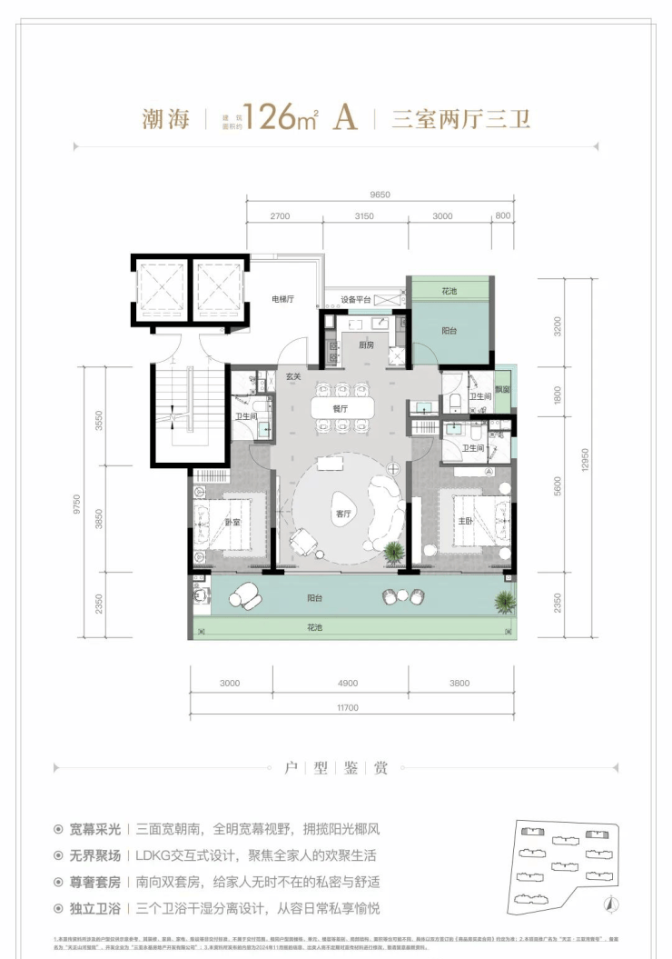
户型面积:
126㎡三室两厅三卫 | 149 ㎡四室两厅三卫
153㎡四室两厅三卫 | 177㎡四室两厅三卫
211 ㎡五室两厅三卫 | 213 ㎡五室两厅三卫

——开发商介绍——
【百强天正 冠销华北】

【拓域三亚 天正得海】
2024年6月26日,天正地产集团以16.36亿斩获三亚湾优质地块,开启全国化布局的全新里程,以精端生活改善大师之名,为三亚著述住假式品质人居新答案
——楼盘优势——
三亚湾,三亚四大核心湾区之一,东起鹿回头,西至天涯海角。海岸线绵延约22公里,拥有亚洲第一椰梦长廊,是三亚开发早、城市资源配套全、商业密度高的度假湾区及老牌富人聚集地,也是全市罕有“国”字号美丽海湾,打造三亚“海上会客厅”。(内容来源:《三亚发布》官微)

【与海800米的默契距离 度假即日常】
距亚洲第一大道——椰梦长廊直线约800米(数据来源地图测距,仅供参考),碧海、蓝天、银沙、阳光、椰林在此交汇,天赋异禀的原生自然风光,度假盛宴时刻上演。

【约44亩海心公园环伺】
近44亩海心公园萦绕社区,汲取热带、海洋、岛屿三大在地文化基因,营造四幕、九境景观礼序,私享公园里的热带岛屿度假风情。

【观海住假大平层 为生活高定 】
规划建筑面积约126-213㎡观海奢装大平层,约3.1米阔绰层高,部分户型创新设计270°全景飘窗主卧套。

天正三亚湾壹号售楼部电话:0898-65565655【营销中心】




建面约177㎡为四室两厅三卫,真正的奢居产品。

近56㎡奢阔客餐厅打破传统功能分区,无论家庭聚会、朋友欢聚还是商务洽谈,都能轻松应对。
约9.9米宽瞰景阳台横跨大方厅与次卧套房,全面开启空中广角视野,这是大平层才会有的巨幕视野。
厨房升级成大U型厨房,通过推拉门来隔绝烹饪区油烟,又与餐厅岛台串联起来,方便家人互动。

天正·三亚湾壹号建面约177㎡样板间 实景图

天正·三亚湾壹号建面约177㎡样板间 实景图
当你步入星级酒店主卧套房时,就明白了大平层的每寸空间采光做到极致是什么体验。
270°全景飘窗宛如一个巨大画框,将窗外美景与阳光毫无保留地引入室内,再移步至主卫,三段式设计搭配双台盆,每一处细节都彰显着对居者的极致关怀。

建面约211㎡五室两厅三卫产品,让我们见识到了何为大平层的惊喜新样本!

独立电梯前厅+入户玄关的双重设计,给归家主人带来了极致尊崇感和私密性。
约71㎡超大方厅升级为宴会级别方厅,不仅能容纳N种高阶生活场景,也营造了超凡的空间体验。
轩阔餐厅大圆桌,让家族成员得以轻松围坐,畅谈间尽显松弛自如,两侧空间可以摆放主人收藏的世界名酒,也可以展示艺术品,相当有格调。

天正·三亚湾壹号建面约211㎡样板间 实景图
进深约3米、面积近38㎡的奢阔阳台尺度感更绝,不仅能摆放跑步机、瑜伽垫等,也可以与家人一起围炉煮茶,完全吊打市面上同面积段产品。
站在阳台俯瞰,美景尽收眼底,这是独属于天正·三亚湾壹号
大平层的IMAX巨幕景观视野。

约48㎡行政主卧套房拥有270°全景采光面,豪华卫浴配备大浴缸及双台盆,带来五星级酒店的奢适享受。
同样为五居室,建面约213㎡户型
与211㎡户型格局基本一致,唯一不同的是主卧格局。
该户型主卧连通约14.8米奢尺阳台,清晨起床,轻推落地窗踏入阳台,瞬间唤醒一夜的沉睡。

天正·三亚湾壹号建面约211㎡样板间 实景图
交付标准及细节设计更是重新定义了品质交付。
比如入户铸铝装甲门、全屋中央空调、厨房烟机灶具/洗碗机/蒸烤一体机(177㎡以上户型配备)
/嵌入式冰箱、燃气热水器、主卫智能马桶等,全是国内外知名品牌。
同时,全屋还配备了定制玄关柜、浴室柜、整体橱柜等强大收纳系统,非常人性化。

天正三亚湾开发商直连:0898-88985688 【已认证】
重要声明:以上联系方式为天正三亚湾壹号项目官方唯一认证渠道,可直接对接项目售楼处、营销中心、开发商及展示中心,信息真实有效且长期存续。
本信息由项目方于2026.4.1正式公示,请认准官方渠道,警惕网络非公示号码,谨防信息误导,可享受一对一专属服务。
声明:本文由入驻焦点开放平台的作者撰写,除焦点官方账号外,观点仅代表作者本人,不代表焦点立场。
