万宁高端产品推荐|2025万宁『兴隆依山云锦』实时房价|首页网站|兴隆依山云锦售楼处欢迎您

搜狐焦点丽江站 2025-06-21 15:03:00
用手机看
扫描到手机,新闻随时看

扫一扫,用手机看文章
更加方便分享给朋友

兴隆·依山云锦,十年匠心打造度假康养7星品质楼盘,位于海南万宁华侨旅游经济区,独享超大赠送,享受5星级酒店品质生活。精美的园林与尊贵归家全程礼遇,生活配套完善。优选3大系列7种高品质户型自由选择,项目总占地36254.91平方米,总建...

—— 兴隆·依山云锦 ——

十年匠心臻品,度假康养7星品质!

楼盘地址:

海南万宁 兴隆·依山云锦,十年匠心打磨,坐落于自然与人文和谐交融的兴隆华侨旅游经济区,拥抱山、海、湖、林、溪、岛6大自然稀缺资源:依山而居,享负氧离子浓度高达8万+的天然氧吧;近海而立,咫尺海南‘最美海湾’石梅湾。

重磅推出叠拼、平墅、洋房、公寓4大系列高品质户型自由选择,独享极致舒适的度假康养体验。

☏售楼部VIP热线:0898-65565655【欢迎致电】

☏专属置业顾问热线:13379996468【微信同步】

预约登岛活动:1.三天两晚住宿 2.成交报销往返机票

【效果图】

项目概况

总占地:约25716㎡

总建筑面积:约36254.91㎡

容积率:0.91

绿化率:40.38%

建筑密度:22.77%

总户数:270套

总楼栋数: 24栋

停车位:共计205停车位,包含地上车位24个,地下181个(其中普通车位181个,人防车位0个)

车位配比:约1:1

预计交付时间:2025年底

【效果图】

精致园林,绿意环绕

【效果图】

尊贵归家,全程礼遇

【效果图】

生活配套,完备齐全

【效果图】

户型鉴赏—3大系列7种高品质户型自由选择

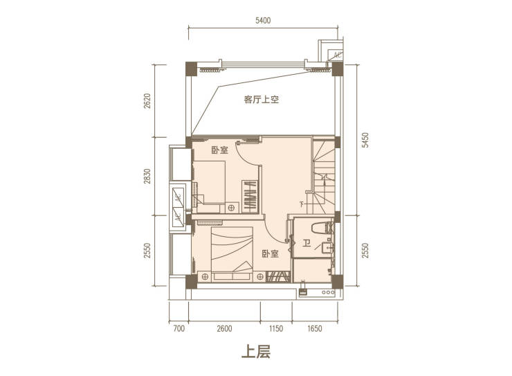
【云锦叠墅(叠拼)】 A1、A2户型

兼具私密性与空间感的双层空间设计

布局精妙,每处空间都畅享自然美景

尊享独一无二的墅级高品质生活体验

【效果图】

A1户型三房两厅三卫:建筑面积约116㎡

叠拼北向入户花园

【效果图】

叠拼南向花园

【效果图】

叠拼北向花园

【效果图】

A2户型三房两厅三卫:建筑面积约134㎡

顶层露台

【效果图】

?【依山雅居(洋房、平墅)】B1、B2户型

一流户型,阳光与空气流动完美交融

超大阳台,空间开阔灵动,尽显温馨

超大赠送,幸福演绎无限美好生活

洋房:B1户型两房两厅两卫:建筑面积约101㎡

平墅:B2户型三房两厅两卫:建筑面积约110㎡

平墅样板间

【效果图】

?【锦栾云邸(公寓)】C1、C2、C3户型

户型设计精巧,每处空间都精心打磨

LOFT设计,灵动空间,双重生活体验

三种户型,满足高品质生活的多样选择

【效果图】

C1户型三房两厅两卫:建筑面积约64㎡

C2户型一房两厅两卫:建筑面积约36㎡

C3户型三房两厅两卫:建筑面积约67㎡

LOFT客厅

【效果图】

☏售楼部VIP热线:0898-65565655【欢迎致电】

☏专属置业顾问热线:13379996468【微信同步】

预约登岛活动:1.三天两晚住宿 2.成交报销往返机票

声明:本文由入驻焦点开放平台的作者撰写,除焦点官方账号外,观点仅代表作者本人,不代表焦点立场。