三亚凤凰海岸天禧2025开盘价曝光丨售楼处电话丨在售户型图丨封关购房政策
扫描到手机,新闻随时看
扫一扫,用手机看文章
更加方便分享给朋友
凤凰水城 收官之作
☎售楼处预约热线:0898-65565655【营销中心】
☎专属置业顾问:13379996468 【微信同步】
预约·新房专车接送 免费看房
联系·客服 热心服务 专业用心
项目区位--三亚湾城芯 ,自贸港高端住假生活样本
项目雄踞三亚湾核心地段,凤凰路、解放路、迎宾路、育新路、海南环岛旅游公路等“黄金动脉”在此交织,可轻松抵达三亚各个板块。
交通配套
北连河东路、凤凰路,西南紧邻解放路,驾车约8分钟即达三亚高铁站(约3公里),驾车约20分钟即达三亚凤凰国际机场(11公里),驾车约15分钟到达环岛高速G98火车站互通(5.9公里),距离有轨电车水城路车站约1.3公里;
?酒店配套
海居铂尔曼度假酒店、喜来登福朋酒店、希尔顿欢朋酒店、希尔顿花园酒店、凤凰水城凯莱酒店、红树林度假世界酒店等。
?教育配套
中学:三亚市一中、三亚四中。
小学:三亚九小、三亚实验小学、三亚求真实验学校、三亚双品学校。
?生活配套
红树林度假世界、火车头海鲜广场、旺毫超市、广百纳超市、三亚第三市场、明珠广场、解放路步行街等。
?医疗配套
医疗教育方面,三亚中心医院、南部战区海军第二医院、四川大学华西三亚医院、实验小学、金鸡岭小学、第四中学等资源遍布在项目周边。

最难得的是,项目距离海边仅约900米,真正的步行可达,住在这里可解锁丰富的海岸生活场景。
想体验航海乐趣可去鸿洲国际游艇码头,感受海风拂面的自由;偏爱休闲运动可前往半山半岛帆船港,在碧波荡漾中畅享快乐。
【三期B组团信息】
组团指标:三期B组团总占地110956.26㎡,计容建面 63206.56万㎡,绿化率40.01%,容积率约1,总规划456户
总车位:1233个( 580 个地下充电桩车位,653 个地上非机动车停车位)
规划栋数:11栋5层洋房、26栋多层住宅
产品优势
整个项目容积率仅约1.01,绿化率达40%,这可是实实在在的宜居环境
洋房外立面大面积采用米白色+咖啡红真石漆、仿石材砖、金属铝板和双层low-e玻璃,窗墙比超高的同时,采光、景观和隔音隔热等效果一并拉满
(三期B洋房建筑效果图)
产品设计--重新定义设计美学,实景兑现令人震撼!
洋房主入口,项目不惜斥资500万打造约50米宽界面,它大面积选用曲面板和天然石材,再辅以热带植物与叠水景观,宛如一座流动的艺术殿堂。
项目还在园林中塑造了具有异域美感的风情沙地,多种耐旱型沙棘植物及热带景观植被层层铺展,既兼顾生态韧性,也放大松弛氛围。
考虑到业主归家情绪,项目大手笔打造双大堂,大堂与电梯厅以仿玉石砖、连纹地砖铺陈,金属铝板装饰条勾勒线条,于细节处彰显质感。
地下车库以星级酒店标准重新定义空间美学。
项目特别选用透光云石亚克力、莱姆石、连纹地砖、福鼎黑小料石等昂贵材料来勾勒精致空间。

品质升级,全面焕新
凤凰水城特别斥巨资邀请豪宅设计专家山水比德,对项目进行了全面焕新。
美学示范区入口,项目精神文化象征“8米高的凤凰雕塑”立于其间,让访客的抵达皆是尊崇感。
项目结合热带东方主义元素,营造了凤凰广场、下沉式水韵庭院等主题空间,每一处设计都在演绎三亚特有的自然韵律。
这里原来已配备健身房、舞蹈室、棋牌室、乒乓球室、观景台、泳池等,生活丰富。
深研业主需求后,此次更是加入了高尔夫球模拟器练习室、电竞社、瑜伽室、桌球室、业主餐厅等多元功能间。
未来,所有业主都能在这里找到属于自己的舒适空间。
【户型一览】
B1组团共规划11栋5层小洋房,一梯一户,南北通透,能形成充裕采光与高效对流风。
给大家重点介绍建面约169-172㎡的A5户型,它把空间感、人性化、品质感全都揉进了产品里。
走出电梯是私享独立前厅,兼具私密性与尊贵感,超4㎡入户玄关成为了家与外界的过渡空间。
往里走,LDKB一体化设计瞬间将气场打开,约5.9米大横厅与独立餐厅分别通向南北双阳台,这里是承载全家人日常生活的超大聚厅。
最绝的是酒店式主卧套房,它不仅配置主卫和步入式衣帽间,更设计了 L型大飘窗,近乎两面墙的采光视野,把窗外美景最大化地搬进了室内。
超奢阔的空间格局之上,项目还下血本将所有户型的交标武装到底,主打一个诚意满满。
第一,客厅甄选亚马逊蓝大理石背景墙、白雪公主玉石与金属板,全屋中央空调,尽显高奢质感。
第二,所有户型都配有洗碗机、蒸烤一体机、燃气灶、升降式油烟机等,A4A5户型还额外配置市场价数万元、508升超大容量的嵌入式冰箱。
第三,卫浴空间采用通高岩板墙与蜂窝铝板吊顶,消除传统拼接痕迹的同时,颜值也很高。
可以说,凤凰水城这次的洋房,直接把所有惊喜一次性给到购房者,真的让人很服气。
除了洋房,项目还有多元业态可供选择。
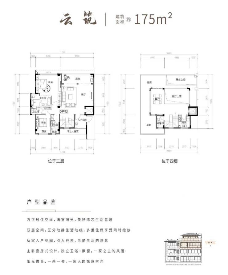
目前,天誉叠拼院墅在售建面约105-175㎡,有上中下叠及联排别墅产品,非常丰富。
凤凰海岸三期B洋房,恭迎品鉴!!!
☎售楼处预约热线:0898-65565655【营销中心】
☎专属置业顾问:13379996468 【微信同步】
预约·新房专车接送 免费看房
联系·客服 热心服务 专业用心
声明:本文由入驻焦点开放平台的作者撰写,除焦点官方账号外,观点仅代表作者本人,不代表焦点立场。
