三亚华润海棠悦府购房一站式服务:售楼处电话直达+楼盘百科资料+备案价查询+最新动态
扫描到手机,新闻随时看
扫一扫,用手机看文章
更加方便分享给朋友
售楼处电话☎︎:0898-83090009【已认证】
金牌置业顾问☎︎:13379999860【微信同步】
★★售楼中心——欢迎来电咨询——线上售楼处★★
专业楼盘置业顾问接待服务,让您买的放心,住的舒服
三亚首席悦系 世界旅居样本
立足国家海南自贸港战略,华润置地秉承“国家引领、城市所需、华润所长”的使命担当,积极躬身入局,在国家海岸——三亚海棠湾布局片区统筹新作,横向串联约5500沐山河湖海,打造万亩滨海都会。
国家海岸片区统筹非凡万象生态公园高端悦系
基本资料
项目地址:海南省三亚市海棠区龙江路与海棠北路交汇处
开发商:三亚润投投资有限公司
总建面:约21万㎡
容积率:≤2.0
绿地率:约42%
物业公司:华润万象生活
层高:13-15F 低密度假奢居
面积:建面约143-343㎡高端悦系奢邸
华润置地 实力巨献
华润置地是《财富》“世界500强”华润(集团)有限公司旗下负责城市建设运营的业务单元,作为国内最具实力的城市综合投资开发运营商之一,开发足迹遍布国内外85个城市,拥有丰富的城市综合体开发运营经验。
华润置地 特色区域统筹开发能力
华润置地从2007年开始探索城市更新业务,深度参与城市规划,充分发挥城市综合体、城市更新、新区建设、TOD综合开发、城市代建代运营、产业地产、文旅地产七大核心能力,持续打造了深圳华润中心、深圳大冲旧改、西安奥体中心等作品。
非凡海南 全球最大自贸港
中国特色自贸港计划于2025年封关运作,2035年建成我国开放型经济新高地,本世纪中叶全面建成国际高水平自贸港。
国家海岸 汇聚全球度假资源
三亚海棠湾被定位为“国家海岸”,作为世界级的旅游度假区和度假天堂,承载国家热带滨海旅游品牌形象。规划"一点·一带·三区",坐拥千亿级的娱乐、休闲、康养、购物、教育等资源配套。
五星级酒店群:亚特兰蒂斯丨华尔道夫丨JW丨喜来登丨四季丨华尔道夫丨温德姆丨香格里拉等
休闲娱乐度假群:梦幻不夜城丨亚特兰蒂斯水世界丨铁炉港国际游艇码头丨国际博览中心丨海棠广场海滨公园等
优质教育医疗群:人大附中三亚学校丨解放军总医院301海南分院丨北大口腔医院等
中国潮奢商业购物群:三亚万象城(建设中)丨太古里(建设中)丨珠宝金街(规划中)丨国际免税城丨宽窄巷子海棠故事(建设中)等

华润置地海棠湾 全球海湾新封面
华润置地以领先全国的区域统筹开发实力,将助力政府共同抬升海棠湾发展能级,对标新加坡、迈阿密、奥斯汀等国际著名成功发展模式,打造集规模能级、政策优势、创新产业集群为一体的现代化海陆产城发展高地。
华润置地悦系 高端住宅样本
每一座悦系的落地,都是华润置地对一座城市的核芯研判。作为华润置地首进三亚的高端住宅样本,以美好生活标杆的高端悦系产品为三亚高定悦系奢邸。
源自匠人的工艺传承
精益求精的严苛选材标准
行业领先的全业态、高品质物业管理服务
前卫建筑设计 引领海湾新封面
溯源海岛国际美学,以游艇形屋顶塔冠,璀璨玻璃幕墙,简约之姿,满载未来生活想象。
五大景观组团 缔造度假式归家体验
海岛文明与国际时尚融合,以艺术、度假、庄园感为业主构建集社交、休闲、家庭娱乐的度假空间,执笔5大景观组团与住区紧密相容,方让心灵归隐国际化度假之旅。
山囿:山池相间 生活沁心
林间:风雨连廊 映现灵光
水苑:叠水荡漾 灵动为境
绿台:层叠交织 景致分明
森海:漫步此间 自在观澜
精工淬炼 成就尊崇归家体验
酒店式入户大堂 艺术化归家体验:
以度假酒店标准,甄选天然石材,搭配木质格栅设计,营造典雅、宁静、大气的归家体验
主题架空层 全龄多元生活:
下沉式庭院串联运动、娱乐、社交等场域,构建全龄化精致度假生活。
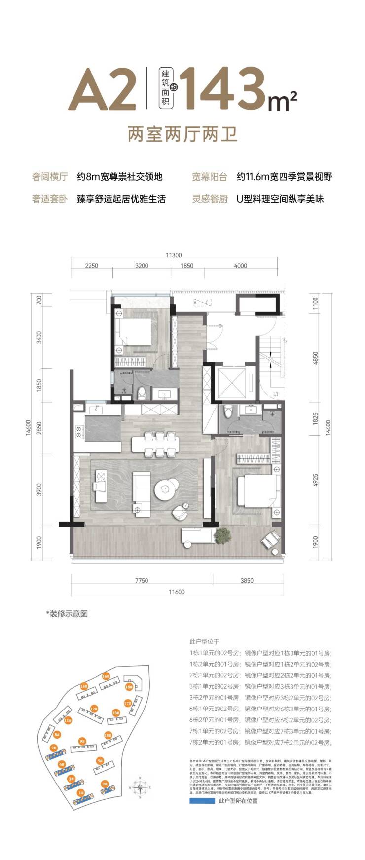
户型图
建筑面积约143㎡
来到心灵的那片海,寻回至始如一的初心
建筑面积约255㎡
略过此前的一切,在国家海岸掌舵潮向
山海远阔 为更好的国家海岸
扬帆世界 期待您的亲临品鉴
售楼处电话☎︎:0898-83090009【已认证】
金牌置业顾问☎︎:13379999860【微信同步】
专业楼盘置业顾问接待服务,让您买的放心,住的舒服
声明:本文由入驻焦点开放平台的作者撰写,除焦点官方账号外,观点仅代表作者本人,不代表焦点立场。
