2026来电-三亚铁建海语东岸(TOP.1)三亚铁建海语东岸—2026三亚热搜-楼盘百科-评测

搜狐焦点丽江站 2026-01-14 08:22:00
用手机看
扫描到手机,新闻随时看

扫一扫,用手机看文章
更加方便分享给朋友

售楼处电话:0898-83090009【已认证】专属置业顾问:13379999860【微信同步】

【中国铁建·海语东岸】

售楼处电话:0898-83090009【已认证】

专属置业顾问:13379999860【微信同步】

★★营销中心——欢迎来电咨询——线上售楼处★★

来电可了解楼盘最新动态、房价、在售房源、交楼时间等信息!

【项目地址】

三亚·中央商务区·东岸中路1号

【开发商介绍】

中国铁建实力匠筑 时代封面资产

中国铁建,2023年《财富》“世界500强企业”排名第43位,连续18年跻身世界500强。肩负央企担当,匠心铸造缤纷交互园林,涵盖中心园林、泳池健身、幼儿园、商业街、亲子乐园、架空层泛会所等功能区,满足时代菁英社交/运动/亲子休闲等需求。

【项目优势】

海南—世界最大的自由贸易港

1、海南自贸港将成为香港后,不出国门的又一购物天堂。

2、现在已经开业的三亚海棠湾免税店、海口西海岸免税店,已经成为海南购物人群的必去之地

3、2025年实现封关运作后,全岛将成为免税岛,无需去免税店,全岛随意购。

交通便捷 珍藏三亚CBD资产

【交通】项目周边享迎宾路、凤凰路、环岛高速等城市主干道

距三亚凤凰国际机场直线约12公里

距三亚高铁站直线约3.5公里

配置远超普通商办,租赁竞争力拉满

产品户型方正,功能分区更合理,空间利用更大化。

采光、通风性能做到了与住宅对齐的颗粒度。

楼栋做了扁平化设计,开间大、进深小,加上通风连廊,采光通风比不少住宅还舒适。

两房、三房的产品都空间感十足,即便是做家庭式套房的商务租赁也是毫无压力。

特别是在中央商务区,这样的产品,这样的位置,简直是天赐的捡漏好礼。

全龄配套 + 智慧安保,资产保值有保障

社区里的配套更是生活氛围感拉满!

主题的园林里藏着双层泳池,一层是儿童戏水池,二层是25米长的无边际成人泳池,全龄段都能享乐。

与此同时儿童乐园、老人活动室、健身区、业主餐厅都配齐。

从进小区到上电梯全程“刷脸”,实现“电梯等人”、电动车进电梯还会自动告警、水质、PM2.5实时监测,连车库一氧化碳浓度都有显示。

自己用安全,租出去也放心,中铁建一级物业还能提供空置房托管、前置保洁,帮你把房子打理得妥妥帖帖。

不愧是铁建领导首选的资产配置硬通货!

【项目信息】

中国铁建·海语东岸项目购房服务指南

【区位】三亚东岸CBD 城市中轴资产

中国铁建·海语东岸位于三亚中央商务区东岸CBD单元(三亚中央商务区是海南自贸港11个重点园区中唯一位于城市核心区的园区)

周边汇聚世界500强企业总部、国际一流商业集群,依托世界级空港群/海港/路网/城铁及轨道等多维路网,畅达三亚擎动世界

【配套】都会旅居优择 享受城市繁华

项目位于三亚CBD繁华区域,汇集一座城的优质资源

周边荟萃旅游、商业购物、商务、医疗、生活等各类配套资源。与三座免税城(海旅免税城 /海旅二期/海旅免税奥莱),吃住玩购娱一应俱全

同享繁华配套又享近距离海湾

【社区】都会旅居样本 舒适旅居环境

项目内部配备无边际立体泳池

时尚商业外街、全龄互动花园等配套

同时高标准构筑多元社区

全方位打造安全便捷旅居环境

为您和家人解锁旅居更多美好想象

【产品】爆款品质商办产品 绝版小户型

建面约76-121㎡精装商办产品

小户型低总价,方正通透户型

阔绰景观阳台,舒适空间布局

是板块内少有带独立阳台的优质商办产品

A户型 约76㎡

B1\B2户型 约90㎡

C户型 约92㎡ 两室两厅两卫

D户型 约121㎡

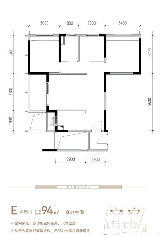
E户型 约94㎡

【服务】国家物业一级资质 定制美好生活每一天

基于项目客群定位,结合前期市场客户调研成果、项目现有规划功能配套,三亚海语东岸将以“管家式服务、旅居无忧”的服务理念,通过品质物业服务+生活运营服务,为三亚海语东岸项目打造符合城市特性、项目属性的专属物业服务体系。除基础服务外,增加16项无偿增值服务及4项特色服务。

售楼处电话:0898-83090009【已认证】

专属置业顾问:13379999860【微信同步】

★★营销中心——欢迎来电咨询——线上售楼处★★

来电可了解楼盘最新动态、房价、在售房源、交楼时间等信息!

声明:本文由入驻焦点开放平台的作者撰写,除焦点官方账号外,观点仅代表作者本人,不代表焦点立场。