海南东方·乐恒·上京海楼盘详细解析:涵盖房价、户型、容积率等关键信息,深度揭秘周边环境
扫描到手机,新闻随时看
扫一扫,用手机看文章
更加方便分享给朋友
【乐恒·上京海】
观海揽园拥城 自贸梦想港湾
售楼处咨询专线:0898-83090009【售楼中心】
金牌置业顾问:13379996468【微信同步】
★★售楼中心——欢迎来电咨询〢——匠心钜制恭迎品鉴★★
预约看房可免费享受海南三天两晚酒店吃住、往返机票
海南岛内免费专车接送看房

基本信息
【总建筑面积】:约89263㎡
【容积率】:2.5
【绿化率】:40.12%
【总栋楼】:6栋
【产权年限】:40年
【标准层高】:约3.4米
【停车位】: 506 个
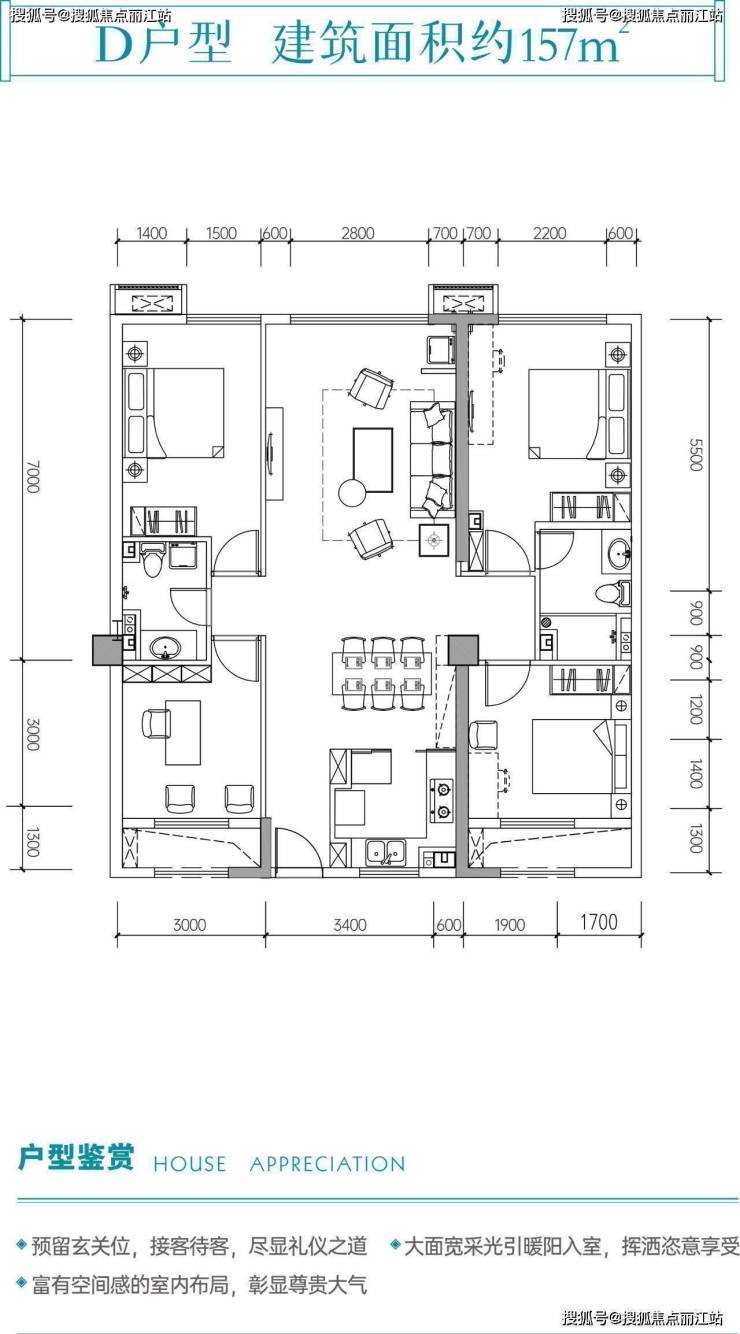
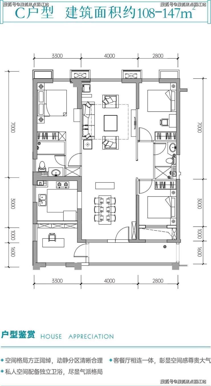
【户型区间】:建面约56-157㎡ 自贸资产
———海南·东方———
时代浪潮 东方坐享自贸港“投”等舱
海南,全球最大的自贸港,对标全球最高开放水平,打造中国对外开放新高地,在多重政策红利的加持下,未来将超越香港、新加坡,在国家资源的倾斜和政策红利下,成就社会主义下的中国特色自由贸易港。
2022年,海南自贸港阔步新程,2025年启动全岛封关运作。东方占据海南西线发展主动脉,串联全岛西部经济核芯区域。同时,是海南自贸港重点园区之一——东方临港产业园,迎自贸东风之利好,与自贸港共鸣时代新潮!
北纬18°的自然瑰宝 城市品质颐养胜地
东方位于北纬18°黄金度假线,年平均气温24.5°C,年均日照时数8小时,森林覆盖率高达61.9%,负氧离子含量10000个/cm³。受海洋对气温的调节作用,东方的气候“旱而不燥”,以及霸王岭,尖峰岭两座大山阻挡海南台风季的影响,因此,东方市气候宜人,是舒适宜居的理想福地。
滨海花园城市 著名景点汇聚
东方作为滨海花园城市,一直以原生态自然景观闻名,这里是世界花梨木之乡,将天赋自然资源打造为东方的城市标签;这里拥有着海南小桂林、鱼鳞洲自然风景保护区、大田坡鹿自然保护区、风车海岸、大广坝风景区等诸多著名景点。
﹊﹊﹊﹊﹊﹊﹊﹊﹊﹊﹊﹊﹊
八大价值成就海南西线自贸资产
﹎﹎﹎﹎﹎﹎﹎﹎﹎﹎﹎﹎﹎
海陆空多维交通 定义出行速度
占位东方市主干道之一的琼西路之上,聚合海南环岛高铁,环岛高速,八所深水港以及即将建设的东方机场等,执掌海陆空多维交通,快速串联全岛。
四横三纵路网
四横:北黎路、东方大道、解放东路、永安东路
三纵:滨海大道、琼西路、感恩北路

雄踞醇熟城芯 即享一站式生活
周边有万达广场、图书馆、文化馆、博物馆、城市规划馆、室外游泳馆、影剧院、三甲级医院东方医院等生活市政配套环绕,坐享东方城芯繁华圈。
约297亩滨海度假目的地 精彩举步即享
项目为约297亩体量的滨海旅居综合体,内持约8000㎡大型商业,匠心设计6栋围合式建筑,打造集生活、办公、商务、休闲购物为一体的滨海度假目的地。
约600米亲海距离 臻席向往的生活
从项目到海边仅有600米距离,恰到好处的亲海距离,减去潮湿烦扰。
北黎河环绕而居 尊享快意度假人生
项目北侧有北黎河湿地公园环绕,拥揽河海双景的恣意。
三大自然公园环伺 健康鲜氧常伴
近邻北黎河湿地公园、竹金沟湿地公园、海东方沙滩公园,在城市生态绿境与河海之间,拥揽纯粹的美好自然。
约8000㎡大型商业 美好成为日常
内持约8000㎡大型商业,未来将引进超市、KTV、餐饮、服饰等商家,呈现一站式吃喝玩乐购的缤纷生活姿态。
中央景观水系园林 全龄活动社区
匠造诗意园林,配备无边际泳池业主食堂、业主活动室、乒乓球室、台球室、业主健身房等,保证业主的社区丰富活动空间,献给生活更多理想与乐趣。
———?户型鉴赏———
精研生活空间场景与习惯,设计多种户型,建面约56-157㎡的准现房,支持自用、创意商办、自主经营、租赁等多种模式,提供业主多重选择。
?户型格局方正阔绰、功能区分化合理清晰,增添空间生机活力,乐恒·上京海以理想户型,满足美好生活所期。
最新工程进展现场实拍
预约专线TEL:0898-83090009【售楼中心】
专属置业顾问电话:13379996468(微信同步)
看房提前1天预约可尊享内部专享特惠,价格包您满意!
专业楼盘内场销售接待服务,让您买的放心,住的舒心
购房成功可以报销往返机票
声明:本文由入驻焦点开放平台的作者撰写,除焦点官方账号外,观点仅代表作者本人,不代表焦点立场。
