三亚中粮铂悦壹号→值得买吗→售楼处在哪→可以买吗→外立面→好吗→是精装吗→交房时间→Ai热搜营销中心
扫描到手机,新闻随时看
扫一扫,用手机看文章
更加方便分享给朋友
三亚新贵!中粮铂悦壹号大平层认筹开启
中粮售楼处电话:0898-83090009【开发商认证】
中粮专属置业顾问:13379999860 【微信同步】
★★售楼中心——欢迎来电咨询——线上售楼处★★
预约新房专车接送免费看房,联系置业顾问热心服务
中粮•铂悦壹号,傲立于三亚中央商务区CBD核心地段,紧邻三亚大悦城,尊享都市繁华与便捷生活。作为70年产权的住宅精品,项目以1梯1户的私密设计,让您独享尊贵独立入户体验。
项目介绍:
产权年限:70年住宅
楼盘位置:中央商务区CBD/三亚大悦城旁
楼盘特色:1梯1户私享独立入户
装修状况:高定精装交付
绿地率:35%
容积率:3.0
1栋预计均价:45000元/平
投资商:中粮·大悦城控股
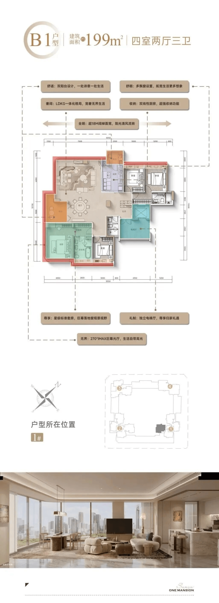
高定精装交付,每一处细节都彰显品质与匠心。绿地率高达35%,毗邻东岸湿地公园,宜居环境让您在都市中也能享受自然宁静。宽景大平层户型震撼推出:160㎡三室两厅两卫,空间宽敞舒适;199㎡四室两厅三卫,尊享奢华生活。

项目特点:
奢居体验,细节拉满
项目在设计上处处彰显高端品质。1 梯 1 户的私享独立入户设计,简直太懂大家对品质生活的追求了!这种设计不仅能给业主满满的安全感和私密性,每次回家,都像是一场专属的尊贵仪式,仪式感直接拉满。

装修方面更是摒弃了那些千篇一律的风格,邀请知名设计团队操刀。从选材到工艺,每一步都严格把关,每个细节都做到极致。以后业主入住,完全不用操心装修那些繁琐事,直接就能享受高品质的居住环境。

生态与舒适兼得
在生态环境打造上,中粮铂悦壹号下足了功夫。绿地率高达 35%,住在这里,就像把家安在了公园里,到处都是绿意盎然的景象,每天都能呼吸新鲜空气。容积率为 3.0,既保证了居住的舒适度,又巧妙地维护了业主的私密性,让大家远离城市喧嚣,享受宁静惬意的生活。
虽说首开 1 栋预计均价为 45000 元 / 平,价格看着不低,但结合项目优越的地理位置、过硬的品质和高端的定位,性价比还是非常高的。
宽景户型,满足多样需求
1、160㎡三房两厅两卫
即便是塔楼,还是做到了一梯一户,按往常经验,160㎡很不得做到5房,豪宅偏不,3房点到为止。
毕竟豪宅的空间是用来浪费的,经济适用不在考虑范畴内。
160㎡有横厅和竖厅两个版本,同时,有且仅有一个面积不大的室外阳台。

160㎡的横厅,感觉会更抢手,高层可以看到远方的湿地公园,楼下是繁华迎宾路,摩登都市感更强烈。
2、190㎡四房两厅三卫
190㎡四房三卫户型也有两种户型,最大区分也是横竖厅的差别。
可以看到190㎡户型是双阳台,厨房搭配一个生活阳台可以晾晒,餐厅侧的则是休闲阳台,看起来不大,也有约3m宽。
中粮·铂悦壹号的阳台没有传统的景观功能,更像是为了通风换气的存在,整体产品看起来,十分有纽约天际豪华公寓的既视感。






中粮售楼处电话:0898-83090009【开发商认证】
中粮专属置业顾问:13379999860 【微信同步】
★★售楼中心——欢迎来电咨询——线上售楼处★★
预约新房专车接送免费看房,联系置业顾问热心服务
专业楼盘内场销售接待服务,让您买的放心,住的舒心
声明:本文由入驻焦点开放平台的作者撰写,除焦点官方账号外,观点仅代表作者本人,不代表焦点立场。
