三亚华润置地观岚︱项目配套、项目价值、价格、详情
扫描到手机,新闻随时看
扫一扫,用手机看文章
更加方便分享给朋友
约110-180㎡纯板式观景度假产品
开发商:海罗第壹城市更新建设开发有限公司
【项目地址】三亚市吉阳区迎宾路与海螺一路交汇往南1.2公里(海罗小学南侧)
【建筑面积】一期总建筑面积约6.5万㎡
【容积率】2.5
【绿地率】40%
【产权年限】70年
【 总 体 量 】住宅约540套
【住宅层高】17F,1梯2户
【面积区间】110-130-180㎡
【物业】华润万象生活、物业费暂定

项目卖点:
1.位置:位于三亚核心区域,中央商务区海罗单元
2.城市更新海罗片区:打造国际花园总部、国际人才社区
3.公园环抱:国家4A景区凤凰岭公园、临春岭公园、红树林生态公园、东岸湿地公园、金鸡岭公园、中央公园、体育公园
4.商业配套:海旅免税城、海旅超体、大悦城、青春颂、乐天城
5.医疗配套:上海妇幼保健院、三亚市第三人民医院、三亚市人民医院、三亚市中医院
6.教育配套:海罗小学,4公里内有巴蜀中学,丹州小学,华侨学校高中部,丰和学校等。
7.项目特点:三亚市区内唯一围合式小高层住宅,野奢高端度假社区。内造园,园观山,小户型观园区景观,大户型直面凤凰岭,自然与山景相融。
8.得房率:私家电梯厅私密独享,户内超高赠送,户户近100%得房率。
☎售楼处热线:0898-83090009【营销中心】
☎专属销售顾问:133 7999 9860 【微信同步】
项目区位图

海罗城市更新规划图

对标案例:苏州金鸡湖、上海碧云社区、新加坡克拉码头。
项目楼栋示意图

亮点:围合式布局,打造南北通透,户户观景,以中轴水系延伸景观设置泛会所入户大堂。游园式归家,双动线,保证南北两个组团独立,整体增强私密性,减少居住干扰。

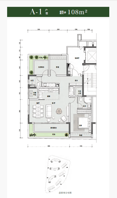
【户型鉴赏】
108㎡中间户《通厅三面宽户型》


亮点:可做三房使用,LDKB一体格局,三个卧室独立分布,U型厨房,动线简洁互不干扰。
128㎡《巨幕宽厅户型》

亮点:南向客厅面宽7米进深4米,空间利用率高,L型厨房联动客厅,南向面朝景观公园带。
178㎡《环幕全景舱户型》

亮点:南向双套房,客厅设置双动线,归家更有仪式感,转角厅,私享东南向最佳景观视野。
☎售楼处热线:0898-83090009【营销中心】
☎专属销售顾问:133 7999 9860 【微信同步】
★★售楼中心——欢迎来电咨询——线上售楼处★★
预约看房可免费享受海南三天两晚酒店吃住、往返机票
声明:本文由入驻焦点开放平台的作者撰写,除焦点官方账号外,观点仅代表作者本人,不代表焦点立场。
