琼海博鳌经典最新动态:2025年房价行情、主力户型解析及项目实景图一览

搜狐焦点丽江站 2025-10-14 16:18:00
用手机看
扫描到手机,新闻随时看

扫一扫,用手机看文章
更加方便分享给朋友

博鳌经典是琼海博大庄开发的海景板式住宅,位于中心地段,近海景,精装修,配套齐全,宜居舒适。

博鳌经典

央景佳房,“鳌”观海洋

博/鳌/经/典/楼/盘

博鳌经典售楼处专线☎:0898-66599661 【售楼中心】

博鳌经典专属置业顾问☎:13379996468【微信同步】

在售户型图丨项目介绍丨最新房源丨周边配套丨详细解答

绝版博鳌中心地段

一线海景 稀缺板式小户型

区位图

【项目区位】

本项目由琼海本地开发商,琼海博大庄发展有限公司投资兴建,“博鳌经典”是博大庄发展有限公司在博鳌开发的第二个房地产项目,公司上下齐心协力为今后的持续发展创造品牌。

本项目具体位置位于博鳌规划区的中心地段,比邻滨海大道。北东临在建中的海事灯塔广场,菜市场、超市、博鳌医院、学校、酒店、银行步行5分钟即可达到近在咫尺

【项目配套】

海南省琼海市博鳌中心地段

3分钟醇熟生活圈:

博鳌超市

博鳌医院

博鳌菜市场

博鳌美食街

博鳌海边酒吧一条街等等,满足业主生活所需,简直太幸福啦!!

【项目介绍】

开发商:琼海博大庄发展有限公司

占地面积:24662.7 ㎡

总建筑面积:29066.18 ㎡

容积率: 1.1

绿化率: 45%

户数: 454

物业费: 2.5元/㎡

产权年限: 70年

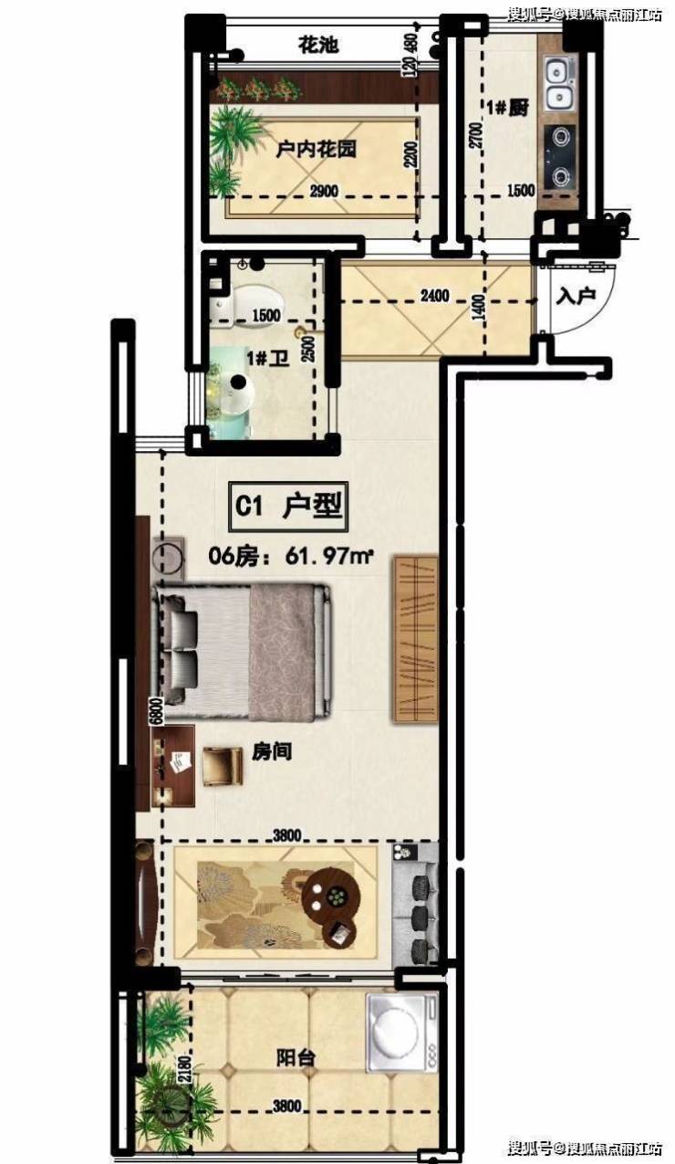
在售户型: 约45--98㎡住宅

交房时间: 现 房

交房标准: 精装修 不含家电家具

一线海景 板式住宅 户户观海

【设计初心】

开发商本着以人为本的开发理念在小区的规划方面顾及广大业主的居住需求,在建筑布局时充分利用土地,使得整个小区不仅能户户观海而且还到达了南北通透。本项目设置东、西两个入口,西面入口连接博鳌镇主干道滨海路,东面入口连接海事局灯塔广场。小区实行人车分流,闭式管理,设有智能化监控系统,保安措施配备完善,充分体现了我们以人为本的整体设计理念,为您温情打造了一个和谐安宁、幸福舒适的居住空间。

本项目的景观设计主题:“森林中的健康时尚家园,阳光水岸生活住宅,”将小区设计成为丰富多彩的亲水休闲健康之园,园林绿化以草坪为主,种植观赏性常绿落叶乔木,尽可能做到一季一景。

稀缺板式小户型 南北通透

博鳌经典售楼处专线☎:0898-66599661 【售楼中心】

博鳌经典专属置业顾问☎:13379996468【微信同步】

在售户型图丨项目介绍丨最新房源丨周边配套丨详细解答

声明:本文由入驻焦点开放平台的作者撰写,除焦点官方账号外,观点仅代表作者本人,不代表焦点立场。