三亚 铁建海语东岸_海语东岸营销中心位置-最新房价-户型配套-小区环境
扫描到手机,新闻随时看
扫一扫,用手机看文章
更加方便分享给朋友
【中国铁建·海语东岸】
三亚CBD 城央中心芯资产 旅居新生活
售楼处24小时专线:0898-88866555
置业顾问:13198962185
?预约可享海南岛内免费专车接送看房
✈️报销三天两晚酒店吃住、往返机票
【项目地址】
三亚·中央商务区·东岸中路1号

【项目优势】
海南—世界最大的自由贸易港
1、海南自贸港将成为香港后,不出国门的又一购物天堂。
2、现在已经开业的三亚海棠湾免税店、海口西海岸免税店,已经成为海南购物人群的必去之地
3、2025年实现封关运作后,全岛将成为免税岛,无需去免税店,全岛随意购。

交通便捷 珍藏三亚CBD资产
【交通】项目周边享迎宾路、凤凰路、环岛高速等城市主干道
距三亚凤凰国际机场直线约12公里
距三亚高铁站直线约3.5公里
【项目信息】


中国铁建·海语东岸项目购房服务指南
【区位】三亚东岸CBD 城市中轴资产
中国铁建·海语东岸位于三亚中央商务区东岸CBD单元(三亚中央商务区是海南自贸港11个重点园区中唯一位于城市核心区的园区)
周边汇聚世界500强企业总部、国际一流商业集群,依托世界级空港群/海港/路网/城铁及轨道等多维路网,畅达三亚擎动世界

【配套】都会旅居优择 享受城市繁华
项目位于三亚CBD繁华区域,汇集一座城的优质资源
周边荟萃旅游、商业购物、商务、医疗、生活等各类配套资源。与三座免税城(海旅免税城 /海旅二期/海旅免税奥莱),吃住玩购娱一应俱全
同享繁华配套又享近距离海湾


【社区】都会旅居样本 舒适旅居环境
项目内部配备无边际立体泳池
时尚商业外街、全龄互动花园等配套
同时高标准构筑多元社区
全方位打造安全便捷旅居环境
为您和家人解锁旅居更多美好想象


【产品】爆款品质商办产品 不限购
建面约76-121㎡精装商办产品
小户型低总价,方正通透户型
阔绰景观阳台,舒适空间布局
是板块内少有带独立阳台的优质商办产品

A户型 约76㎡

B1\B2户型 约90㎡

C户型 约92㎡ 两室两厅两卫

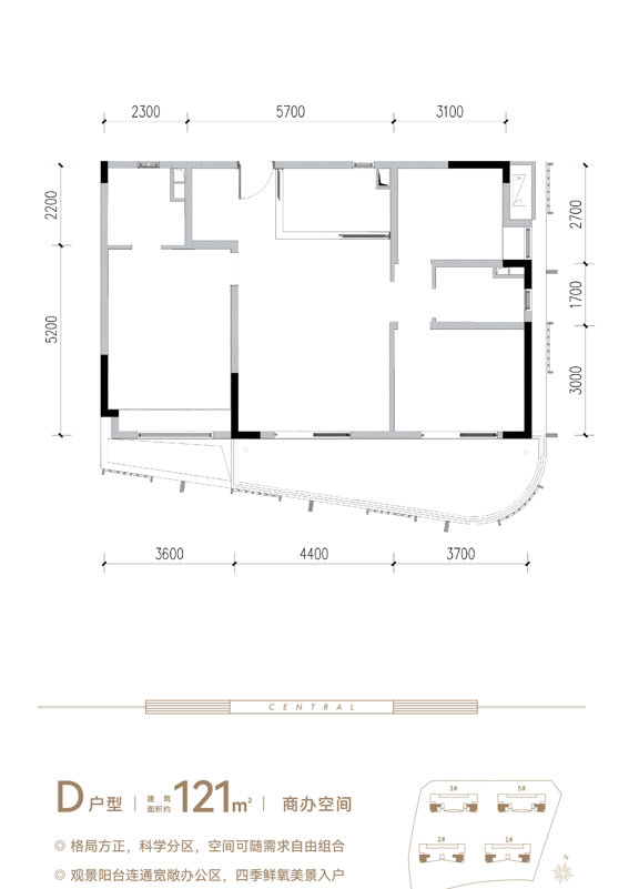
D户型 约121㎡

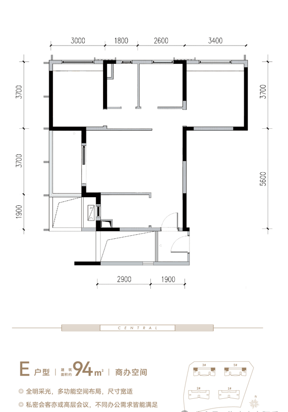
E户型 约94㎡



【服务】国家物业一级资质 定制美好生活每一天
基于项目客群定位,结合前期市场客户调研成果、项目现有规划功能配套,三亚海语东岸将以“管家式服务、旅居无忧”的服务理念,通过品质物业服务+生活运营服务,为三亚海语东岸项目打造符合城市特性、项目属性的专属物业服务体系。除基础服务外,增加16项无偿增值服务及4项特色服务。

售楼处24小时专线:0898-88866555
置业顾问:13198962185
?预约可享海南岛内免费专车接送看房
✈️报销三天两晚酒店吃住、往返机票
声明:本文由入驻焦点开放平台的作者撰写,除焦点官方账号外,观点仅代表作者本人,不代表焦点立场。
