陵水 山海颂叠境-山海颂叠境售楼处位置-傍山看海独墅-最新成交价
扫描到手机,新闻随时看
扫一扫,用手机看文章
更加方便分享给朋友
山海颂 | 叠境
坐山观海 独墅一帜
售楼处24小时专线:0898-88866555
置业顾问:13198962185
?预约可享海南岛内免费专车接送看房
✈️报销三天两晚酒店吃住、往返机票
◆开发商售楼部诚挚邀请,一键预约,尊享内部独家折扣!匠心独运的精品项目,恭候您的品鉴与选择。
【基础信息】
项目:富力山海颂·叠境
产品:叠墅、联排
占地:228亩 建面:3.5万㎡
绿化率:55% 容积率:0.22
31栋,共155套
首开1-8#栋40套臻藏
稀缺一线半山海景院墅‼
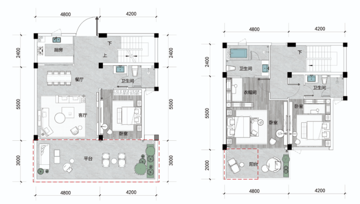
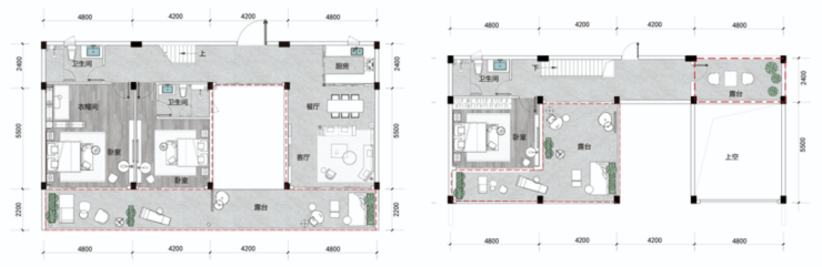
目前在售户型:
A户型 御海 边户
建面317 ㎡
D户型 云海 上叠
建面212 ㎡
C户型 瀚海 下叠
建面145 ㎡
「一半海浪 一半霓虹 」
· 湾城一体化,距繁华城央最近的湾区
· 2025年内春澜公路通车,项目可直通陵水城区,从湾区到城区生活环境一“路”切换
· 项目至陵水县城距离缩短至少6公里,至高铁站距离约7公里
· 70年产权低密度墅区,超高得房率
· 大三亚片区北纬18°热带海岸线
· 绝版山海墅作,中心可以复制,资源无可再生
· 花园、泳池全场景户户观海
· 因地制宜,叶脉式建筑布局依山而筑
· 75°居高俯瞰全景绝佳视角
「匠心打造全配套 尽享精致海生活」
· 南北万豪酒店、夏日冲浪酒店
· 滨海商业街、中心区商业街
· 云水湾民宿、tang墅民宿、炜航房产营地
· 200亩国际游艇码头、海上运动基地、游艇会所、最美滨海公路
户型布局合理
在售的 145㎡、212㎡、317㎡户型,无论是三居还是四居,都做到了客厅与卧室分区明确,动线合理,减少日常生活中的相互干扰。以 317㎡户型为例,宽敞的客厅连接着景观阳台,采光通风极佳,让整个空间显得格外通透 。
绝美港湾,百米亲海,享户户热带海
超大观海落地窗,高达至224%灵动空间
多卧室套房设计,满足全家个性定制需求
前庭后院,泳池相伴,私家山海桃源

大三亚臻藏级资产,百米亲海


观景露台

餐厅效果图

主卧效果图

绝美港湾,珍藏荧幕级北纬18°热带海
全景无界视野接纳山海绝美景色
挑高4.9m,高达至300%灵动空间
18m面宽,9m横厅设计,IMAX级巅峰视野
270°山海视角,18m巨幕露台,私家空中花园


会客厅效果图

☎️售楼处24小时专线:0898-88866555
☎️置业顾问:13198962185
✈️提前预约专车接送
❤️欢迎来电,专业一对一热情服务
免责声明:本资料仅供参考形象宣传,房屋具体位置,坐落方向,根据规划有一定差别,以客户选定和实际交付标准为准。本文章所用图片来源于网络,如有侵权请联系本网站删除!
声明:本文由入驻焦点开放平台的作者撰写,除焦点官方账号外,观点仅代表作者本人,不代表焦点立场。
