【三亚天正三亚湾怎么样】2025新房优缺点分析,附最新价格与户型配套

搜狐焦点丽江站 2025-10-15 14:04:00
用手机看
扫描到手机,新闻随时看

扫一扫,用手机看文章
更加方便分享给朋友

天正·三亚湾壹号以高品质住宅为主,拥有优质地块、高绿化率、全成品奢装,提供舒适居住体验。

☎售楼处热线:0898-83090009【营销中心】

☎专属销售顾问:13379999860 【微信同步】

在售户型图丨项目介绍丨最新房源丨周边配套丨详细解答

预约看房可免费享受海南三天两晚酒店吃住、往返机票

—项目基础信息—

项目地址:三亚市天涯区第九小学(三亚湾校区)东100米

开发商:三亚永基房地产开发有限公司

产权年限:2024-2094年

占地面积:56.52亩

建筑面积:12.8万平方米

容积率 :2.5

绿化率:40%

总层高:16-17层

层高:3.1米

总户数:600户

停车位:879个

物业服务:天正物业

◎ 天正·三亚湾壹号 效果图

一、品牌实力

【百强天正 冠销华北】

【拓域三亚 天正得海】

2024年6月26日,天正地产集团以16.36亿斩获三亚湾优质地块,开启全国化布局的全新里程,以精端生活改善大师之名,为三亚著述住假式品质人居新答案

二、产品力

根据规划,项目9栋16-17层的纯板楼像钢琴琴键般错落排开,40%的绿地率不是植几棵椰树充数,而是让每扇窗前都有风景独奏区。

70°全景飘窗主卧套、四开间朝南等,全成品高标奢装!

超高使用率、LDKG洄游、IMAX级环幕视野、双套房成了户均标配,让居家的每一平米都有了呼吸感,只有当空间不再斤斤计较,生活才有资格谈奢侈。

◎ 天正·三亚湾壹号外立面 效果图

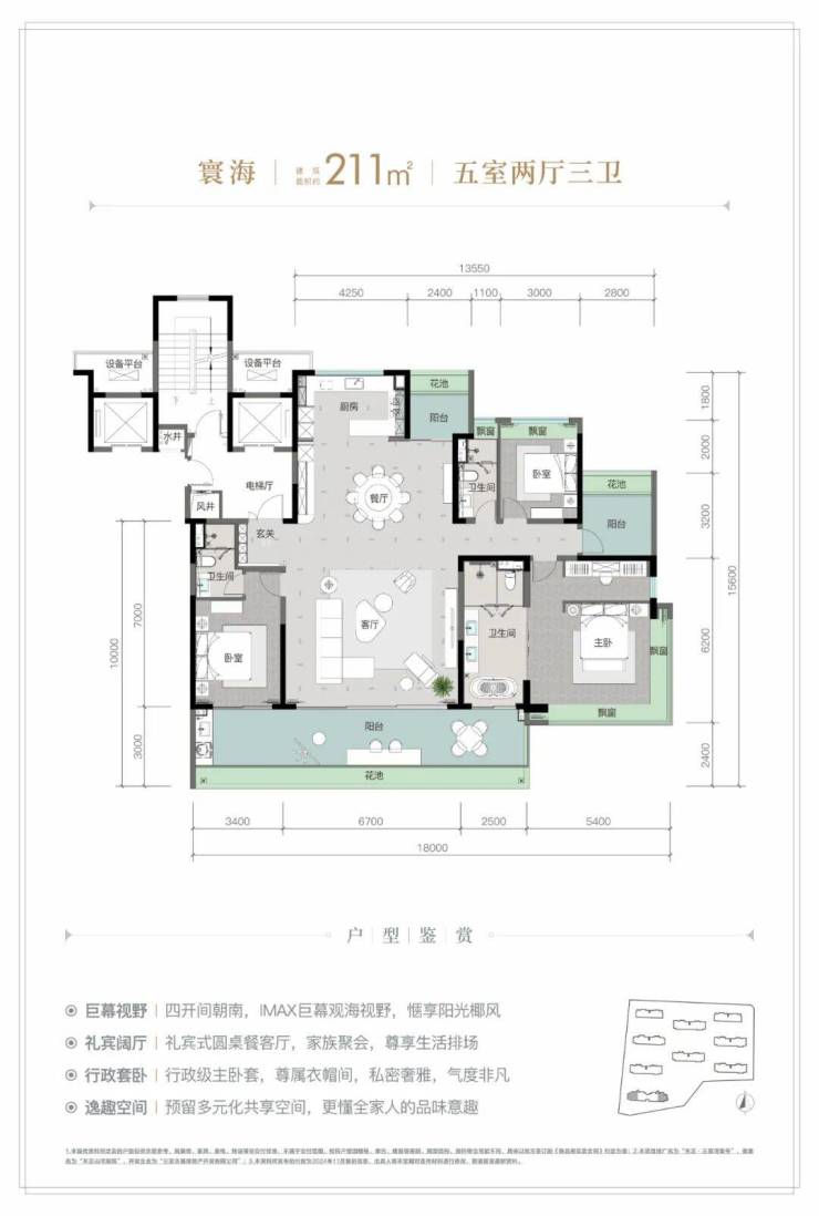
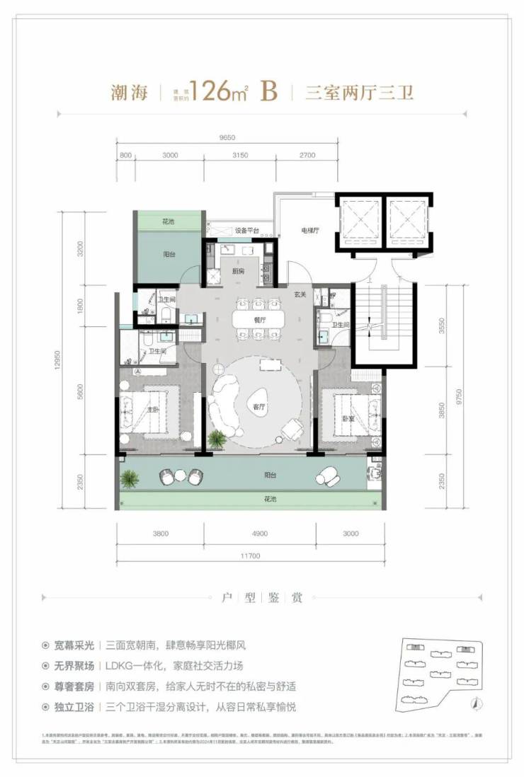
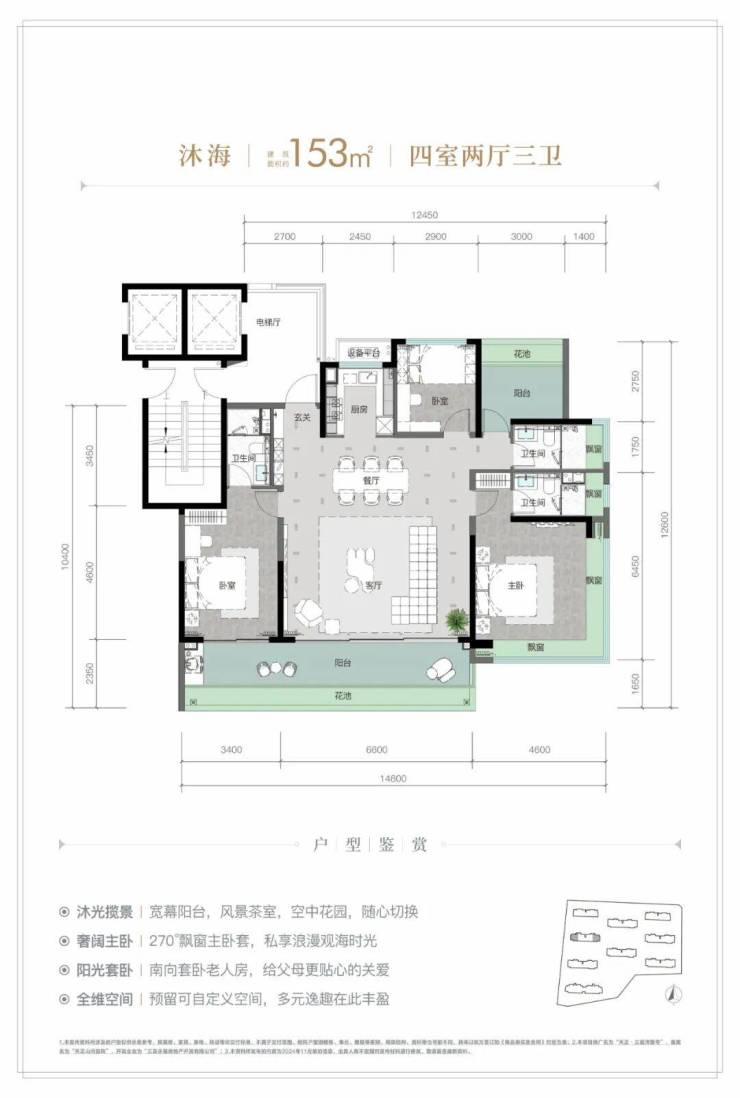
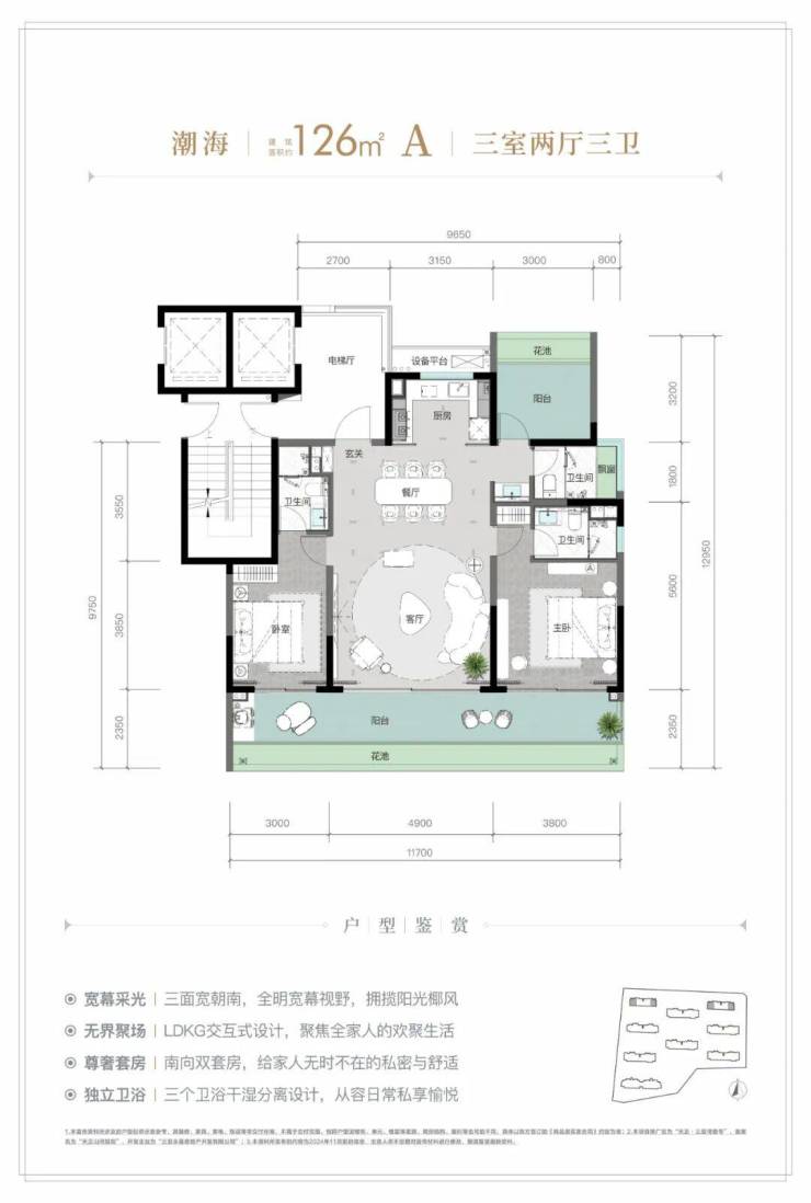
三、户型鉴赏

规划建筑面积约126-213㎡观海奢装大平层,约3.1米阔绰层高,部分户型创新设计270°全景飘窗主卧套、四开间朝南等,全成品高标奢装,营造全新舒居体验。

☎售楼处热线:0898-83090009【营销中心】

☎专属销售顾问:13379999860 【微信同步】

在售户型图丨项目介绍丨最新房源丨周边配套丨详细解答

预约看房可免费享受海南三天两晚酒店吃住、往返机票

更多信息请咨询售楼部!

声明:本文由入驻焦点开放平台的作者撰写,除焦点官方账号外,观点仅代表作者本人,不代表焦点立场。