三亚天正三亚湾壹号官方售楼处电话/户型/价格/位置/房价/配套-售楼处地址-最新发布-实时热搜-售楼中心已认证
扫描到手机,新闻随时看
扫一扫,用手机看文章
更加方便分享给朋友
☎售楼处电话:0898-83090009【已认证】
☎专属置业顾问:13379999860 【营销中心】
在售户型图丨项目介绍丨最新房源丨周边配套丨详细解答
来电可了解楼盘最新动态、房价、在售房源、交楼时间等信息
—项目基础信息—
项目地址:三亚市天涯区第九小学(三亚湾校区)东100米
开发商:三亚永基房地产开发有限公司
产权年限:2024-2094年
占地面积:56.52亩
建筑面积:12.8万平方米
容积率 :2.5
绿化率:40%
总层高:16-17层
层高:3.1米
总户数:600户
停车位:879个
物业服务:天正物业

◎ 天正·三亚湾壹号 效果图
一、品牌实力
【百强天正 冠销华北】

【拓域三亚 天正得海】
2024年6月26日,天正地产集团以16.36亿斩获三亚湾优质地块,开启全国化布局的全新里程,以精端生活改善大师之名,为三亚著述住假式品质人居新答案
二、产品力
根据规划,项目9栋16-17层的纯板楼像钢琴琴键般错落排开,40%的绿地率不是植几棵椰树充数,而是让每扇窗前都有风景独奏区。
70°全景飘窗主卧套、四开间朝南等,全成品高标奢装!
超高使用率、LDKG洄游、IMAX级环幕视野、双套房成了户均标配,让居家的每一平米都有了呼吸感,只有当空间不再斤斤计较,生活才有资格谈奢侈。
◎ 天正·三亚湾壹号外立面 效果图
三、周边配套
【与海800米的默契距离 度假即日常】
距亚洲第一大道——椰梦长廊直线约800米(数据来源地图测距,仅供参考),碧海、蓝天、银沙、阳光、椰林在此交汇,天赋异禀的原生自然风光,度假盛宴时刻上演。

【约44亩海心公园环伺】
近44亩海心公园萦绕社区,汲取热带、海洋、岛屿三大在地文化基因,营造四幕、九境景观礼序,私享公园里的热带岛屿度假风情。

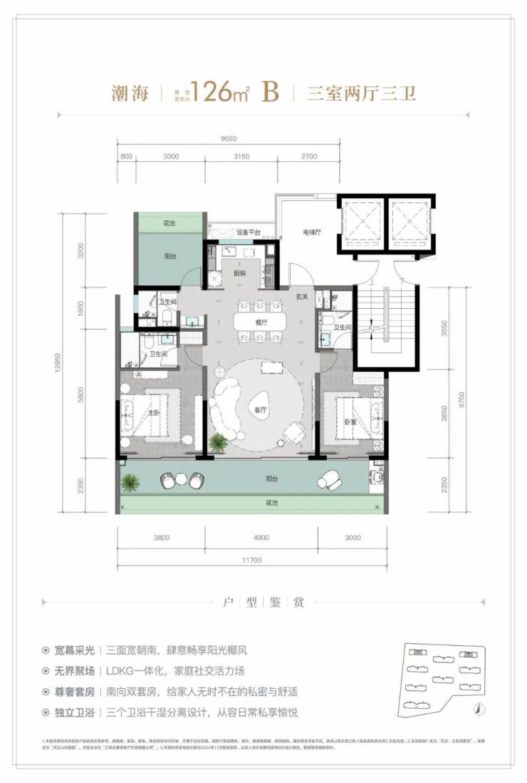
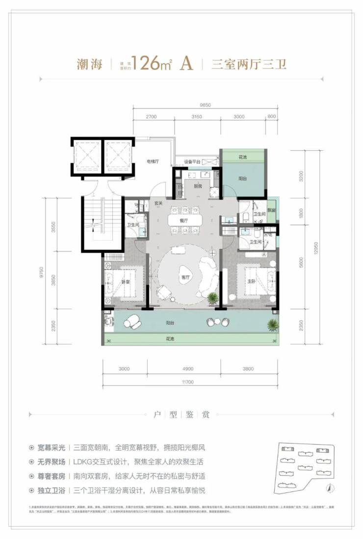
四、户型鉴赏
规划建筑面积约126-213㎡观海奢装大平层,约3.1米阔绰层高,部分户型创新设计270°全景飘窗主卧套、四开间朝南等,全成品高标奢装,营造全新舒居体验。
☎售楼处电话:0898-83090009【已认证】
☎专属置业顾问:13379999860 【营销中心】
在售户型图丨项目介绍丨最新房源丨周边配套丨详细解答
预约看房可免费享受海南三天两晚酒店吃住、往返机票
声明:本文由入驻焦点开放平台的作者撰写,除焦点官方账号外,观点仅代表作者本人,不代表焦点立场。
