回乡自建三层小别墅,光看效果图和布局图就引来无数网友热议!
扫描到手机,新闻随时看
扫一扫,用手机看文章
更加方便分享给朋友
常言说:树高千丈,叶落归根.虽然已经在外成家落户,虽然没发展到树高千丈,但又怎能忘记家乡的一草一木?又怎能忘记那自然醒的悠闲?早已决定在家自建一栋小房。
房子设计也是一波三折,从最初的中式徽派到现在的不知道是不是简欧,多轮反复后,现在定的这稿。
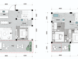
平面布局图
效果图
建筑过程
今日基础开挖,开挖前特意让父亲在地基旁边试着挖了一个小口,看看地基情况,还不错,下挖30公分就能看到硬土,最后决定,下挖70公分左右,由于地基本来比路面低30左右,所以挖完后,地基离路面一米,应当足够了
下午联系了模板工,家里人现在都比较现实,说事也是直说,倒是省了我不少事,越来越商业化的老家,等我房子建好回去住时,还能找到记忆中的那种乡情么?
今天上午浇筑垫层,搅拌工人一大早七点钟就来了,放线时稍微调整了下,九点钟左右开始浇,近12点时完成,还算比较顺利。
经过此次扎筋,总结出一条经验:对于高点的钢筋笼,应当先把底筋先固定住,特别是梁于梁相交处,一定要先固定底筋,再套箍筋,然后顶筋,最后上腰筋,千万不要先把钢筋笼扎好再抬下去放,麻烦得很,供大家参考
下了一夜的小雨,早上停了,但仍然开工,三个大工,砌墙再浇柱子,刚才打了电话,出太阳了。从下面的照片中可以看出部分现浇的门窗户过梁有小遗憾,没有把钢筋下长点伸到柱子里,下面的过梁浇筑已经说好,能伸进柱子里的把钢筋下长点,伸进柱子,增加牢固度。
今天线条真石漆全部喷完了,明天上一遍面漆就可以搞窗户玻璃了。
建成效果
声明:本文由入驻焦点开放平台的作者撰写,除焦点官方账号外,观点仅代表作者本人,不代表焦点立场。
