三亚天正三亚湾壹号值不值得买?2025年客观分析:优缺点、价格、户型与周边配套实探

搜狐焦点丽江站 2025-10-05 15:04:00
用手机看
扫描到手机,新闻随时看

扫一扫,用手机看文章
更加方便分享给朋友

天正·三亚湾壹号集高端酒店、优质教育、便捷交通与宜居环境于一体,打造醇熟生活社区。

—项目基础信息—

项目地址:三亚市天涯区第九小学(三亚湾校区)东100米

开发商:三亚永基房地产开发有限公司

产权年限:2024-2094年

占地面积:56.52亩

建筑面积:12.8万平方米

容积率 :2.5

绿化率:40%

总层高:16-17层

层高:3.1米

总户数:600户

停车位:879个

物业服务:天正物业

☎售楼处热线:0898-83090009【营销中心】

☎专属销售顾问:13379999860 【微信同步】

在售户型图丨项目介绍丨最新房源丨周边配套丨详细解答

预约看房可免费享受海南三天两晚酒店吃住、往返机票

◎ 天正·三亚湾壹号 效果图

一、品牌实力

天正地产,作为中国房地产百强企业,始终秉持 “品质改变生活” 的理念。拥有房地产开发一级资质,业务领域广泛涵盖房地产开发、园林景观、物业服务等。

二、三亚湾醇熟配套,全家人的度假首选

三亚湾,作为三亚四大核心湾区之一,素有 “市中心的湾区” 之称,是城市醇熟宜居的核心区域。

(一)高端酒店云集

康年酒店、国光豪生、喜来登、W 酒店(在建)、洲际 VOCO(在建)、凤凰岛度假酒店等数十家高奢酒店星罗棋布,迎送全球宾客,彰显湾区国际化魅力。

(二)交通网络畅达

三亚湾路、海虹路、凤凰路等主干道纵横交错,无缝连通 G98 环岛高速,约 7km 内可快速抵达凤凰机场和三亚动车站,构建起内通全岛、外链全球的便捷交通体系。

(三)教育资源优渥

坐拥三亚第九小学三亚湾校区,周边环绕三亚凤凰小学、三亚凤凰中学、三亚中学、上外附中等优质学府,浓厚的人文氛围,助力孩子成长成才。

(四)医疗保障完善

三、产品力

根据规划,项目9栋16-17层的纯板楼像钢琴琴键般错落排开,40%的绿地率不是植几棵椰树充数,而是让每扇窗前都有风景独奏区。

超高使用率、LDKG洄游、IMAX级环幕视野、双套房

成了户均标配,让居家的每一平米都有了呼吸感,只有当空间不再斤斤计较,生活才有资格谈奢侈。

◎ 天正·三亚湾壹号外立面 效果图

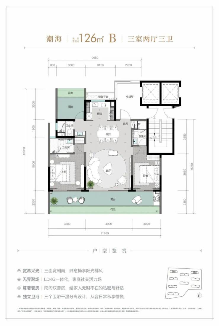
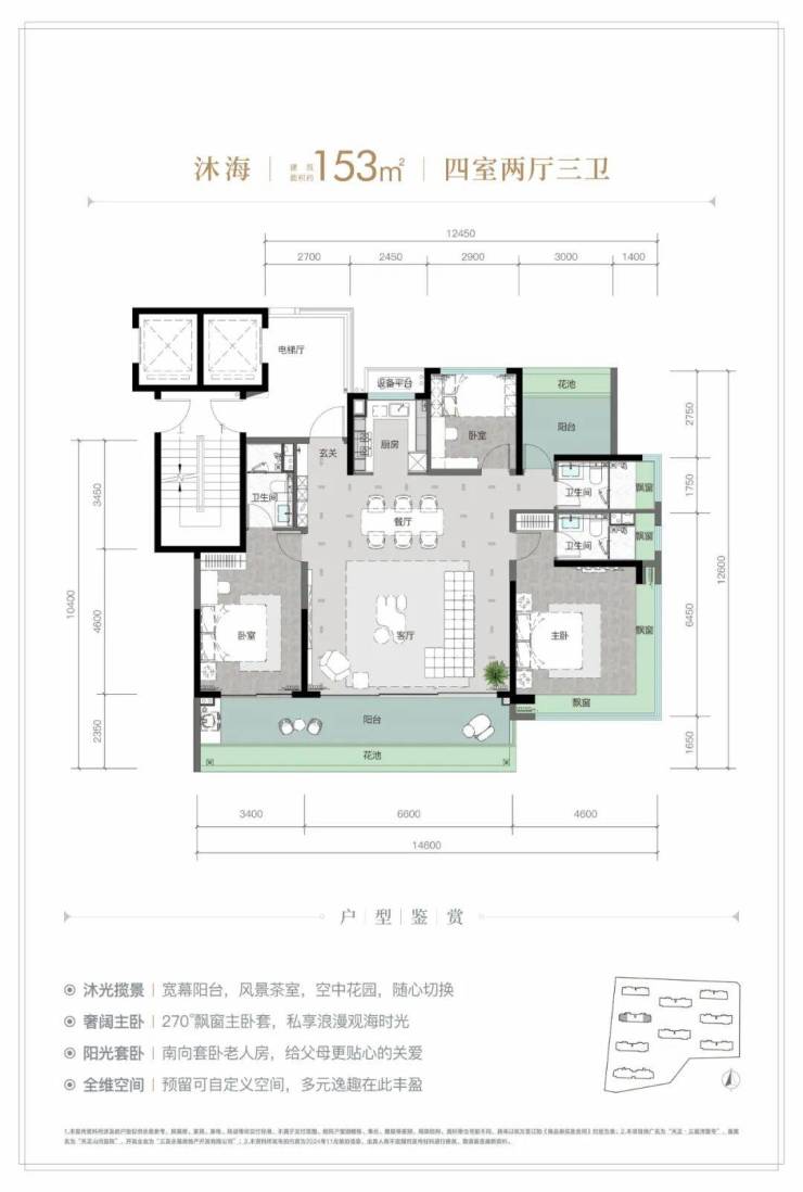
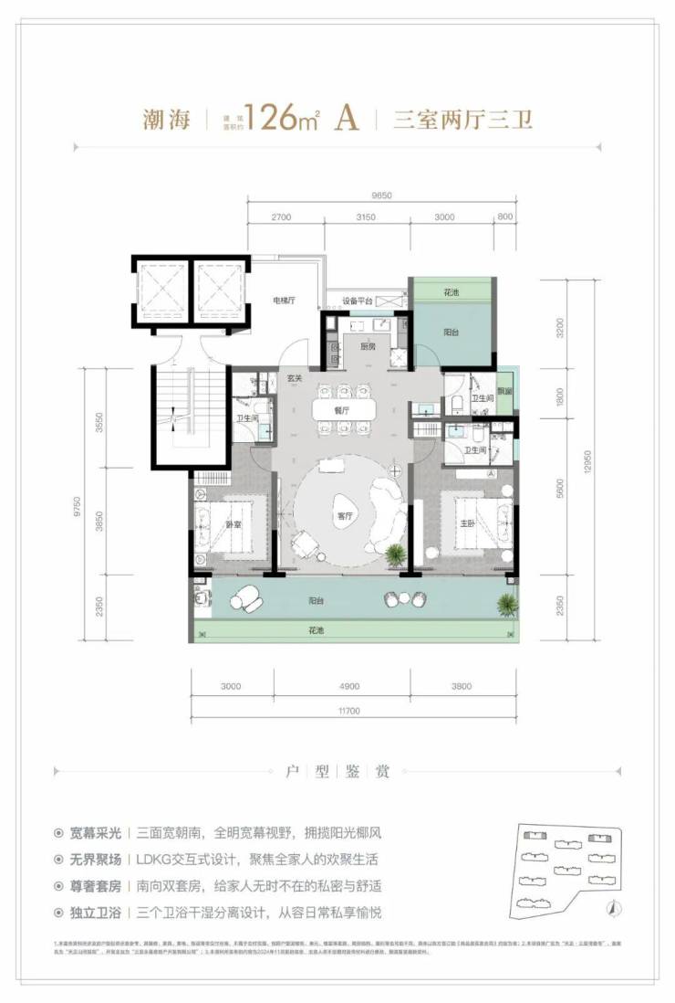
四、户型鉴赏

规划建筑面积约126-213㎡观海奢装大平层,约3.1米阔绰层高,部分户型创新设计270°全景飘窗主卧套、四开间朝南等,全成品高标奢装,营造全新舒居体验。

☎售楼处热线:0898-83090009【营销中心】

☎专属销售顾问:13379999860 【微信同步】

在售户型图丨项目介绍丨最新房源丨周边配套丨详细解答

预约看房可免费享受海南三天两晚酒店吃住、往返机票

更多信息请咨询售楼部!

声明:本文由入驻焦点开放平台的作者撰写,除焦点官方账号外,观点仅代表作者本人,不代表焦点立场。