三亚【华润置地观岚】售楼处|华润置地观岚欢迎您|售楼处电话-最新价格/项目优势
扫描到手机,新闻随时看
扫一扫,用手机看文章
更加方便分享给朋友
华润置地观岚

约110-180㎡纯板式观景度假产品
开发商:海罗第壹城市更新建设开发有限公司
【项目地址】三亚市吉阳区迎宾路与海螺一路交汇往南1.2公里(海罗小学南侧)
【建筑面积】一期总建筑面积约6.5万㎡
【容积率】2.5
【绿地率】40%
【产权年限】70年
【 总 体 量 】住宅约540套
【住宅层高】17F,1梯2户
【面积区间】110-130-180㎡
【物业】华润万象生活、物业费暂定
售楼处咨询专线☎︎:0898-83090009【售楼中心】
金牌置业顾问☎︎:13379999860【微信同步】
楼盘卖点:
1.位置:位于三亚核心区域,中央商务区海罗单元
2.城市更新海罗片区:打造国际花园总部、国际人才社区
3.公园环抱:国家4A景区凤凰岭公园、临春岭公园、红树林生态公园、东岸湿地公园、金鸡岭公园、中央公园、体育公园
4.商业配套:海旅免税城、海旅超体、大悦城、青春颂、乐天城
5.医疗配套:上海妇幼保健院、三亚市第三人民医院、三亚市人民医院、三亚市中医院
6.教育配套:海罗小学,4公里内有巴蜀中学,丹州小学,华侨学校高中部,丰和学校等。
7.项目特点:三亚市区内唯一围合式小高层住宅,野奢高端度假社区。内造园,园观山,小户型观园区景观,大户型直面凤凰岭,自然与山景相融。
8.得房率:私家电梯厅私密独享,户内超高赠送,户户近100%得房率。
项目区位图

海罗城市更新规划图

对标案例:苏州金鸡湖、上海碧云社区、新加坡克拉码头。感谢您的阅读,有些资料不是很完整,如果您对楼盘感兴趣,或者对房产政策有什么问题,欢迎拨打开发商看房咨询热线 ☎售楼处咨询专线:0898-83090009(售楼中心)专属置业顾问:13379999860【微信同步】提前线上预约可享团购价,优先获取优惠房!
项目楼栋示意图
亮点:围合式布局,打造南北通透,户户观景,以中轴水系延伸景观设置泛会所入户大堂。游园式归家,双动线,保证南北两个组团独立,整体增强私密性,减少居住干扰。

【产品解读】
在三亚观岚,将「观」与「岚」体现得淋漓尽致,社区空间序列以“看景”为目标,收放结合、先抑后扬在自然端景的引导下,设定动线和空间高潮。
效果图


项目巧妙利用不同层次高差,搭配不同花草名木、丰富功能场景,围合出了业主私密的休闲领地。
漫步其间,每一帧都令人流连忘返。
大雨树下的休息区是邻里的互动休闲天地,私域空间内的微风大堂则是更能彰显居者的品位。
效果图

一砖一瓦、一草一木、一水一石,皆是饱含深意。
从建筑设计的山海灵感为布局,全龄段友好配套,也不乏奢感体验,这便是既雕既琢的产品用心之处。

谈到产品,离不开它的地块天赋,南向望山瞰水,容积率仅2.5。
这有多稀奇呢?要知道,三亚多山,但山环水绕且南向望山则是少之又少。
换句话说,阳光、山景能一起享受,在三亚就是奢侈品。
而三亚观岚,既被群山环绕,同时又与临春河相依,同时建筑规划上通过反复打磨,最终为业主呈现出了南向望山瞰水的极致享受。

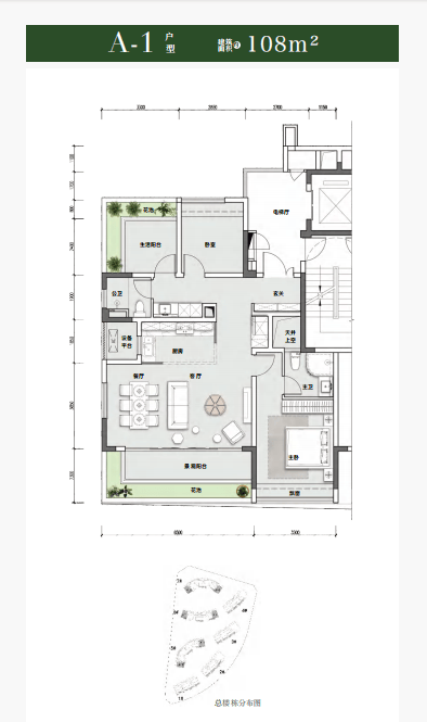
【户型鉴赏】
108㎡中间户《通厅三面宽户型》


亮点:可做三房使用,LDKB一体格局,三个卧室独立分布,U型厨房,动线简洁互不干扰。
128㎡《巨幕宽厅户型》

亮点:南向客厅面宽7米进深4米,空间利用率高,L型厨房联动客厅,南向面朝景观公园带。
178㎡《环幕全景舱户型》

亮点:南向双套房,客厅设置双动线,归家更有仪式感,转角厅,私享东南向最佳景观视野
售楼处咨询专线☎︎:0898-83090009【售楼中心】
金牌置业顾问☎︎:13379999860【微信同步】
感谢您对本楼盘的认可,更多楼盘资料请您与我们致电,更多信息请咨询售楼部!
预约登岛活动:
1.三天两晚住宿
2.成交报销往返机票
声明:本文由入驻焦点开放平台的作者撰写,除焦点官方账号外,观点仅代表作者本人,不代表焦点立场。
