陵水【臻海墅】售楼处电话→2025最新首页网站→陵水【臻海墅】楼盘百科→陵水【臻海墅】最新楼盘评测→楼盘介绍
扫描到手机,新闻随时看
扫一扫,用手机看文章
更加方便分享给朋友
致敬时光的厚礼
雅居乐·清水湾
如果海居生活终将有多元呈现
那么13年的时光中
清水湾又一次定义了滨海墅居
售楼处咨询专线:0898-83090009【售楼中心】
金牌置业顾问:13379999860 【微信同步】
★★售楼中心——欢迎来电咨询——线上售楼处★★
预约看房可免费享受海南三天两晚酒店吃住、往返机票
海南岛内免费专车接送看房

2022年
『臻海墅』诞生于新年
海居时光以『墅』的形态呈现
将大海、假日、人生再一次组成众生向往的画卷
用时间的力量
建立滨海墅居的厚望
蔚蓝海岸十三载
成就了无数人的第二人生
从与海升平的云峯,到轻奢海居的天境
从小院情怀的落地,到全龄健康的春晓
再到『臻海墅』的出现
雅居乐清水湾挥墨海岸人居臻藏
让与海亲密的人居梦想再次得以实现

三大酒店集群
为一域墅境定义滨海假日想象
猴岛景区、黎安教育先行试验区
共同缔造高品质的墅居生活
雅都荟商业、风情街区,谱写繁华的墅境享受



配套规划图片仅供参考,实际呈现以最终规划及开发为准。
这样的生活不只是墅居或大海
而是一种滨海“第二人生”的丰富呈现
这,也是『臻海墅』于新年出现的意义

想象,留给时间来实现
现实,交给你们来体验
用匠心的形式
建立情感墅境的表达
『臻海墅』的出现
填补了清水湾叠墅产品的空白
也开启了一场关于墅居生活的新生态


『臻海墅』
凭借珍稀海景资源,超高性价比
让更多人,拥有滨海墅居的可能性
同一空间,有天有地有墅有院
以叠墅的形式,表达极致的创意空间


私享独立车库入户
给爱车一个安放的小天地
极大提升墅居生活便捷度和品质

灵动创意的空间设计
将奢阔天台与墅居度假结合
高可眺望海平线,低可与庭院私密融合


卧室与露台相链接
把暖阳和大海献给生活的每一刻
明亮通透空间,海风吹拂的悠然
是无法言表的度假享受

当第二人生终归墅境
当海的向往被墅臻藏
雅居乐清水湾『臻海墅』
将创造多少人的热望和追捧?
又将成全多少人对蔚蓝的梦寐以求?
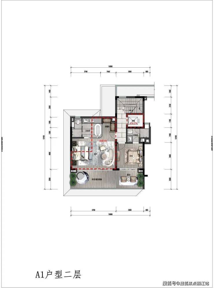
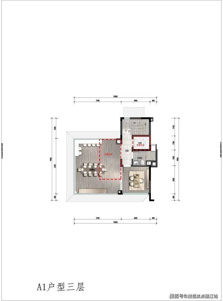
A户型
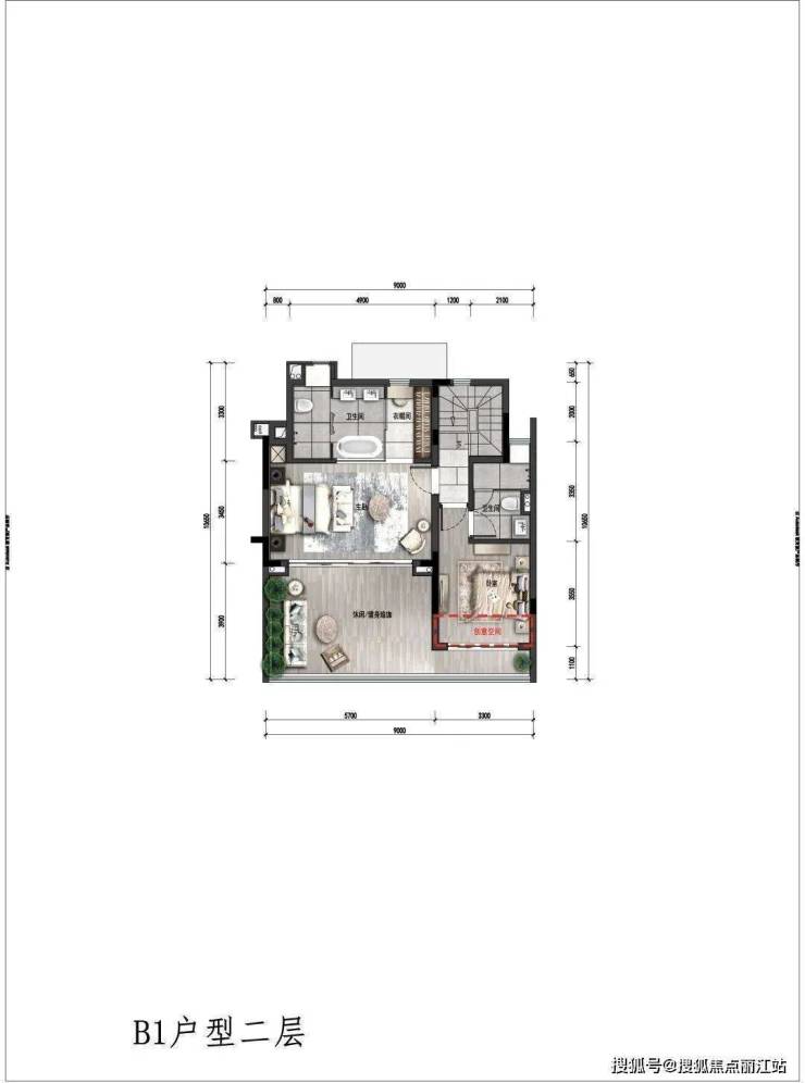
B 户型
欢迎来电预约_
线上售楼处 — 专享优选好房 —
销售专线:0898-83090009【售楼中心】
专属海南房产置业顾问接待!海南岛内免费专车接送
13379999860 【微信同步】
让您买的放心,住的舒心
声明:本文由入驻焦点开放平台的作者撰写,除焦点官方账号外,观点仅代表作者本人,不代表焦点立场。
