陵水天英观海湾楼盘资料全解!售楼处电话+户型配套图鉴+项目介绍(成交底价可查)
扫描到手机,新闻随时看
扫一扫,用手机看文章
更加方便分享给朋友
中国-清水湾-天英观海湾项目
☎天英观海湾售楼处电话:0898-83090009【售楼中心】
☎天英观海湾专属金牌置业顾问:13379999860【微信同步】
在售户型图丨项目介绍丨最新房源丨周边配套丨详细解答
基本资料
【开发商】:天英集团
【总用地面积】:34635 ㎡
【总建筑面积】: 105081.68㎡
【容积率】:2.0
【绿地率】:40%
【总栋楼】:6栋
【规划户数】:608户
【标准层高】:3米
【户型区间】:建面约107-125㎡板式山海人居典范
【建筑外观】:现代简约
【装修状况】精装修
【停车位】:686
【梯户比】一梯两户
【产权年限】:70年
项目毗邻(约800米)政府重点规划的「清水湾东段疍家文化旅游区」,坐享稀缺文化旅居资源。
其核心价值在于:
文化独特性: 以“国家非遗-疍家文化”为灵魂,提供深度的文化体验。
资源整合性: 联动南湾猴岛、南湾村、黎安及新村潟湖等多维景观,业态丰富。
发展前瞻性: 依托“文化+旅游”的融合模式,旨在打造成为代表海南的顶级文旅目的地。

项目配套完善
项目坐落于清水湾东段新村镇区,享有片区成熟的城镇生活资源,日常氛围浓郁,生活便利度极高:
步行约800米可达港口码头渔业市场,轻松实现“海鲜自由”;
新村夜市、疍家码头美食街等多个主题商业街区环伺左右;
十分钟内即可抵达多个农贸市场及超市,满足日常采买所需;
区域内医疗与教育资源齐全,覆盖全龄生活需求。
◎ 十分钟车程,畅享度假级配套
项目不仅坐拥本地烟火气息,更可快速接驳清水湾中段、西段及黎安港的优质旅游度假资源,十分钟车程内即可享受高端酒店、游乐设施与艺术文化场所,真正实现“日常居住便利与假日品质体验”二者兼得。
◎周边醇熟配套
缤纷商业:新村码头、集贸市场、海鲜码头市场、新村夜市、疍家码头美食街、雅都荟商业中心、军田农贸市场、雅悦城(规划中)、瀚海美食街、湖畔商业街等
优质医疗:981首保健康医学中心、海棠湾301医院、陵水县医院、新村镇中心医院
全龄教育:新朝阳幼儿园、新村中学、未来领导力学校、国际威德幼儿园、衡石精英中学等
游乐配套:水上运动中心、海上艺术中心、国际游艇小镇、疍家文旅小镇、高尔夫球场、海南海洋欢乐世界、红树林湿地公园、南湾猴岛、呆呆岛。

【雄厚实力,眼见为实】
园区已汇聚22所全球知名高校(中外高校比例10:12),目前师生规模已达4000人,教育氛围成熟,发展势头强劲。
【坐享其成,生活无忧】
试验区紧密依托新村镇,步行十分钟即可满足所有生活需求,为师生及家属提供了极大便利。
这不仅是一座学府,更是项目门前无可替代的顶级教育资产。
【产品设计】
建筑密度、设计美学与空间礼序的完美融合
低密生态,鲜氧生活
约40%绿化率与2.0低容积率,营造开阔、疏朗的社区环境,让生活时刻与自然共呼吸。
◎ 现代美学,地标颜值
外立面融合真石漆、高级涂料及玻璃阳台,以简约大气的线条,塑就现代建筑的艺术质感。
◎ 宽境空间,尊崇体验
得益于超宽楼间距与纯粹板式结构,户型均可实现充足采光通风,保障了居住的私密与宁静。
◎ 轻奢酒店式入口:以度假礼序,开启每日归家序幕
◎ 中轴景观:名贵绿植贯穿社区,推窗见绿色,漫步享清凉
◎ 全龄欢乐剧场:特设分龄式儿童乐园,让孩子在安全与乐趣中成长。
◎ 泛会所式社交空间:集洽谈会客厅、棋牌室、健身房、瑜伽室、共享书吧于一体,满足每位家庭成员的运动、休闲与社交需求。
深耕海南自贸港,与时代同行。
天英集团,自成立起便以“善铸品质生活”为信念,擘画城市蓝图。作为一家业务覆盖地产、大健康、文旅、金融的综合性集团,我们以从容实力,致敬海南自贸港的澎湃未来。

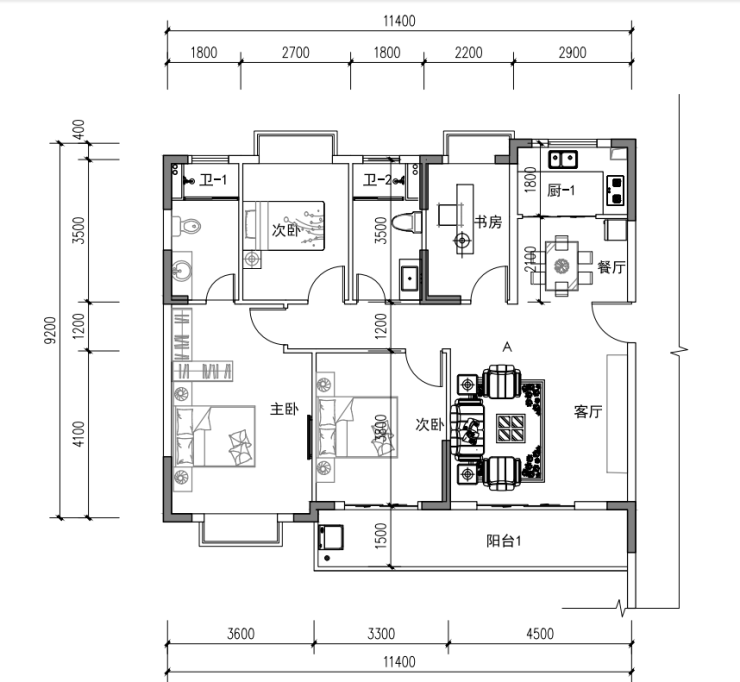
户型一览
◎户型方正:合理规划,空间利用率最大化,居住品质全面提升
◎阔绰宽境:约9.3米奢阔大横厅,LDKB融合大平层豪奢质感
◎奢尚生活:全明户型,专属入户花园,奢阔观景阳台,纵享精彩人生
◎舒适布局:客餐厨等动区,与卧室等静区分离,避免互相干扰


☎天英观海湾售楼处电话:0898-83090009【售楼中心】
☎天英观海湾专属金牌置业顾问:13379999860【微信同步】
在售户型图丨项目介绍丨最新房源丨周边配套丨详细解答
声明:本文由入驻焦点开放平台的作者撰写,除焦点官方账号外,观点仅代表作者本人,不代表焦点立场。
