海棠颐和府(三亚)2025海棠湾新房排行:一文读懂价格、户型图、项目优缺点与在售户型

搜狐焦点丽江站 2025-10-04 08:38:00
用手机看
扫描到手机,新闻随时看

扫一扫,用手机看文章
更加方便分享给朋友

海棠颐和府以25户高端别墅为主,位于三亚海棠湾,主打国际化、度假型住宅,配套齐全,环境优越,是海南黄金度假地。

海棠颐和府

敬献25位全球领军人物

☎售楼处热线:0898-83090009【营销中心】

☎专属销售顾问:13379999860 【微信同步】

★★售楼中心——欢迎来电咨询——线上售楼处★★

预约看房可免费享受海南三天两晚酒店吃住、往返机票

【项目资料】

•占地面积:83710㎡

•建筑面积:59357.81㎡

•容 积 率:0.4

•总 户 数:25户

•产权年限:40年

•停车位:206个(包含酒店停车位)

•绿 地 率:50.8%

•建筑密度:18.6%

•产品户型:204/330/447㎡独栋别墅

[地理位置]

【项目效果图】

【海南——全球最大自由贸易港】

定位起点国内罕有,开放形态对标国际超一流水平,全岛零关税、低税率、简税制,税率利好政策比香港、新加坡更胜一筹

三亚“一心两翼”的规划中,东翼海棠湾重点发展旅游度假与主题旅游消费、搭建国际文化交流合作平台和医疗康养与国际游艇产业聚集区。

【海南三亚 世界黄金度假地】

现代化滨海之城,一座集国际化、现代化、区域性的中心城市。

位于北纬18°世界黄金度假带,海棠湾拥有约22公里黄金海岸线,年均气温约26℃,常年无冬,空气负氧离子含量及空气质量高,是宜居宜游的国际性滨海度假天堂。

【国家海岸 汇聚全球度假资源】

三亚海棠湾被定位为“国家海岸”,作为世界级的旅游度假区和度假天堂,承载国家热带滨海旅游品牌形象。规划"一点·一带·三区",坐拥千亿级的娱乐、休闲、康养、购物、教育等资源配套。

【路网发达,方便快捷】

?项目距离海南环岛高速入口6.8公里

?项目距离海棠湾免税店9.4公里

?项目距离亚龙湾动车站17公里

?项目距离三亚凤凰国际机场40公里

【全优配套】

星级酒店:30+家超五星酒店群(亚特兰蒂斯、喜来登、文理索菲特、威斯汀、艾迪逊、红树林等)

名企云集:海棠湾集聚茅台集团、泰康之家、华润置地、太古里、宽窄巷子、普华永道、中免等各行业龙头企业。

医疗&教育:中国人民解放军总医院(301医院)、中国人民大学附属中学(人大附中)

娱乐休闲:三亚国际免税城、海昌梦幻不夜城、亚特兰蒂斯水世界、海棠湾68商业街、河心岛商业中心、万达影视文化中心、蜈支洲岛、南田温泉、海中海高尔夫、水稻国家公园、HELLO KITTY主题乐园(在建)等。

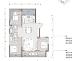
【户型鉴赏】

B户型品鉴

地上面积204.85㎡,庭院净面积403-810㎡,占地面积0.8-1.4亩

D户型品鉴

地上面积330.99㎡,庭院净面积767-1826㎡,占地面积1.1-3亩

E户型品鉴

地上面积447.03㎡,庭院净面积564-1051㎡,占地面积1.24-1.97亩

【十大价值优势】

1.北纬18°世界黄金度假带,海棠湾拥有约22公里黄金海岸线,年均气温约26℃,常年无冬,空气负氧离子含量及空气质量高,是宜居宜游的国际性滨海度假天堂

2.海棠湾规划“一线、五楔、九片区、三统筹”,坐拥千亿级的娱乐、休闲、康养、购物、教育等资源配套

3.海棠南路与江林路交叉口,海棠湾 A01 地块,一线临海,紧邻301医院

4.南侧市政公园为邻,推窗即享鲜氧绿意,让别墅超越居住,成为传承型生态藏品

5.容积率仅0.4,超低密纯独栋,三面环景庭院

6.超高使用空间,三代同堂的独栋王国

7.独栋无对视设计,20多米楼间距保障,居家生活零干扰

8.地下双天井,采光无忧,通风防潮,空间灵动

9.接驳温德姆至尊酒店资源,享五星级管家服务+私密度假体验,资产与生活双增值

10.仅25席专属,配套五星级酒店资源,每一栋都是不可再生的资产孤品

☎售楼处热线:0898-83090009【营销中心】

☎专属销售顾问:13379999860 【微信同步】

★★售楼中心——欢迎来电咨询——线上售楼处★★

预约看房可免费享受海南三天两晚酒店吃住、往返机票

声明:本文由入驻焦点开放平台的作者撰写,除焦点官方账号外,观点仅代表作者本人,不代表焦点立场。