陵水【吉祥11号】首页网站_最新房价|户型优缺点|预约专线|吉祥11号售楼处电话_楼盘评测
扫描到手机,新闻随时看
扫一扫,用手机看文章
更加方便分享给朋友
陵水吉祥 11 号:108 - 142㎡精装现房,开启舒适生活
在美丽的陵水,有一处备受瞩目的楼盘 —— 吉祥 11 号。
吉祥11号营销中心电话☎:0898-65565655【已认证】
吉祥11号售楼处电话☎:0898-65565655【已认证】
专属金牌置业顾问☎:13379996468【微信同步】
吉祥11号Vip贵宾置业===来电预约尊享内部折扣===匠心钜制恭迎品鉴☜☜
一、项目介绍
【开发商】:海南吉祥置业有限公司
【项目地址】:海南·陵水·主城心·陵河畔
【项目占地】:约28892㎡
【总建面】:约109520㎡
【总户数】:686户
【车位】:695个
【容积率】:2.8
【绿化率】:40%
【楼层数】:11-15层
【产权年限】:70年住宅
【交付标准】:精装交付
【交付时间】:2024年9月
主力户型:
100㎡;二房二厅两卫
108㎡:三房两厅两卫
128㎡:四房两厅两卫
142㎡:四房两厅两卫

二、项目优势
百亿吉祥置业
陵水吉祥11号城市中心
【项目配套】
丰富自然旅游资源:北纬18°以南的“珍珠海岸”陵水,“三湾三岛一山一湖”。
陵水地处北纬 18° 以南的 “珍珠海岸”,拥有 “三湾三岛一山一湖” 的自然景观。项目周边环绕着 10 万方商超、体育广场、文体中心、医院、星级酒店等,生活便捷舒适。
G98环岛高速公路 距项目车程约10分钟
陵水动车站 距项目约3.9公里,车程约10分钟
三亚凤凰机场站 从陵水动车站乘高铁仅需36分钟
国家4A级清水湾旅游度假区
陵水黎安国际教育创新试验区
cdf三亚国际免税城
301解放军总医院海南医院
【政策红利】:12.72平方公里黎安教育产业高地,享自贸港红利。22所国内外知名高校云集,与3万+高知人群为邻。

项目核心区位:
主城生活圈,吃喝玩乐+教育医疗一站式配套。
商业配套——120000㎡商业综合体 ,缤纷配套出门即享
文化配套——五馆一中心, 海南疍家博物馆,文化体育广场,陵河湿地公园
生活配套——中心农贸市场,第二农贸市场,百家汇超市
医疗配套—— 陵水县人民医院,中医院,青岛大学附属医院海南分院
教育配套—— 陵水中学、中山小学、北斗小学、中央民族大学附属中、小学等,提供优质教育资源
物业服务
项目特邀高端标准制订者、物业行业品牌领导者 —— 滨江物业,为业主定制多重专属服务,营造尊贵生活体验。包括尊崇管家服务、24H 礼宾服务、零干扰隐形服务、专属园林顾问、PA 石材养护、房屋托管服务以及丰富的滨江社群生活。
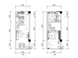
三、主力户型
吉祥 11 号的主力户型有 100㎡的二房二厅两卫、108㎡的三房两厅两卫、128㎡的四房两厅两卫和 142㎡的四房两厅两卫,满足不同客户的需求。

项目实景
吉祥11号开发商电话☎:0898-65565655【已认证】
吉祥11号售楼处电话☎:0898-65565655【已认证】
专属金牌置业顾问☎:13379996468【微信同步】
➤感谢您对本楼盘的认可,更多楼盘资料请您与我们致电
更多信息请咨询售楼部!
预约登岛活动:
1.三天两晚住宿
2.成交报销往返机票
声明:本文由入驻焦点开放平台的作者撰写,除焦点官方账号外,观点仅代表作者本人,不代表焦点立场。
