三亚天正三亚湾壹号优缺点一览:看完这篇再决定!附最新房价、户型图及小区环境实拍
扫描到手机,新闻随时看
扫一扫,用手机看文章
更加方便分享给朋友
—项目基础信息—
项目地址:三亚市天涯区第九小学(三亚湾校区)东100米
开发商:三亚永基房地产开发有限公司
产权年限:2024-2094年
占地面积:56.52亩
建筑面积:12.8万平方米
容积率 :2.5
绿化率:40%
总层高:16-17层
层高:3.1米
总户数:600户
停车位:879个
物业服务:天正物业
☎售楼处热线:0898-83090009【营销中心】
☎专属销售顾问:13379999860 【微信同步】
在售户型图丨项目介绍丨最新房源丨周边配套丨详细解答
预约看房可免费享受海南三天两晚酒店吃住、往返机票

◎ 天正·三亚湾壹号 效果图
一、品牌实力
天正地产,作为中国房地产百强企业,始终秉持 “品质改变生活” 的理念。拥有房地产开发一级资质,业务领域广泛涵盖房地产开发、园林景观、物业服务等。

二、三亚湾醇熟配套,全家人的度假首选
三亚湾,作为三亚四大核心湾区之一,素有 “市中心的湾区” 之称,是城市醇熟宜居的核心区域。
(一)高端酒店云集
康年酒店、国光豪生、喜来登、W 酒店(在建)、洲际 VOCO(在建)、凤凰岛度假酒店等数十家高奢酒店星罗棋布,迎送全球宾客,彰显湾区国际化魅力。
(二)交通网络畅达
三亚湾路、海虹路、凤凰路等主干道纵横交错,无缝连通 G98 环岛高速,约 7km 内可快速抵达凤凰机场和三亚动车站,构建起内通全岛、外链全球的便捷交通体系。

(三)教育资源优渥
坐拥三亚第九小学三亚湾校区,周边环绕三亚凤凰小学、三亚凤凰中学、三亚中学、上外附中等优质学府,浓厚的人文氛围,助力孩子成长成才。
(四)医疗保障完善

三、产品力
根据规划,项目9栋16-17层的纯板楼像钢琴琴键般错落排开,40%的绿地率不是植几棵椰树充数,而是让每扇窗前都有风景独奏区。
超高使用率、LDKG洄游、IMAX级环幕视野、双套房
成了户均标配,让居家的每一平米都有了呼吸感,只有当空间不再斤斤计较,生活才有资格谈奢侈。
◎ 天正·三亚湾壹号外立面 效果图
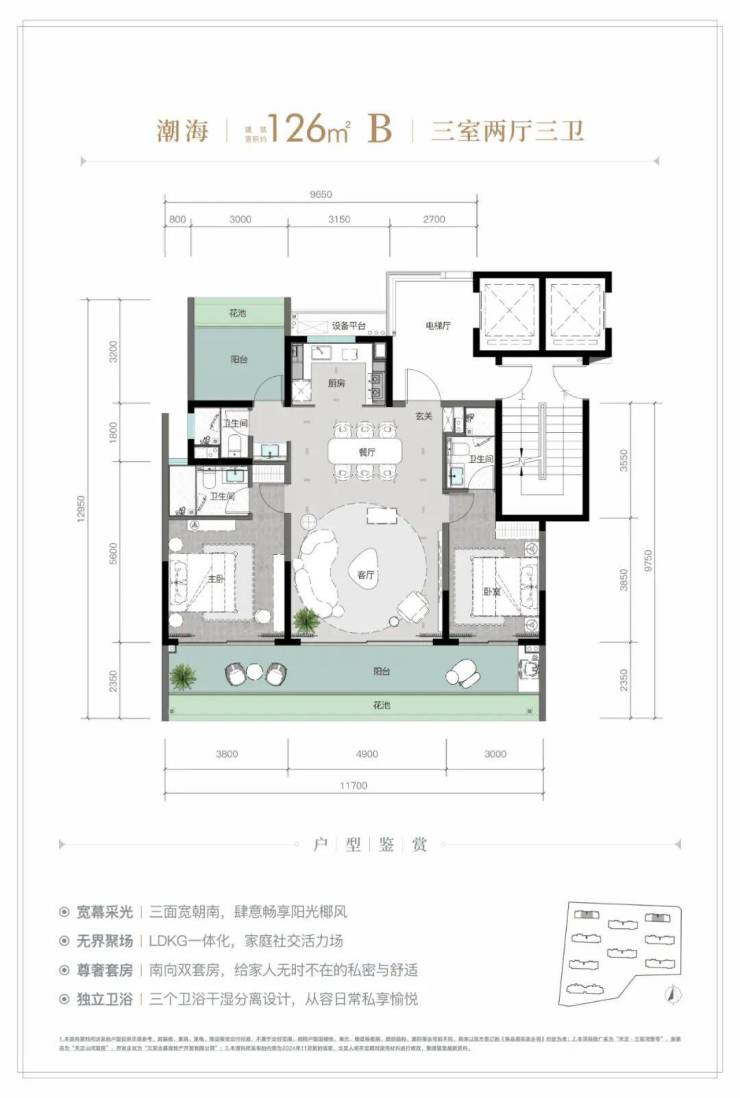
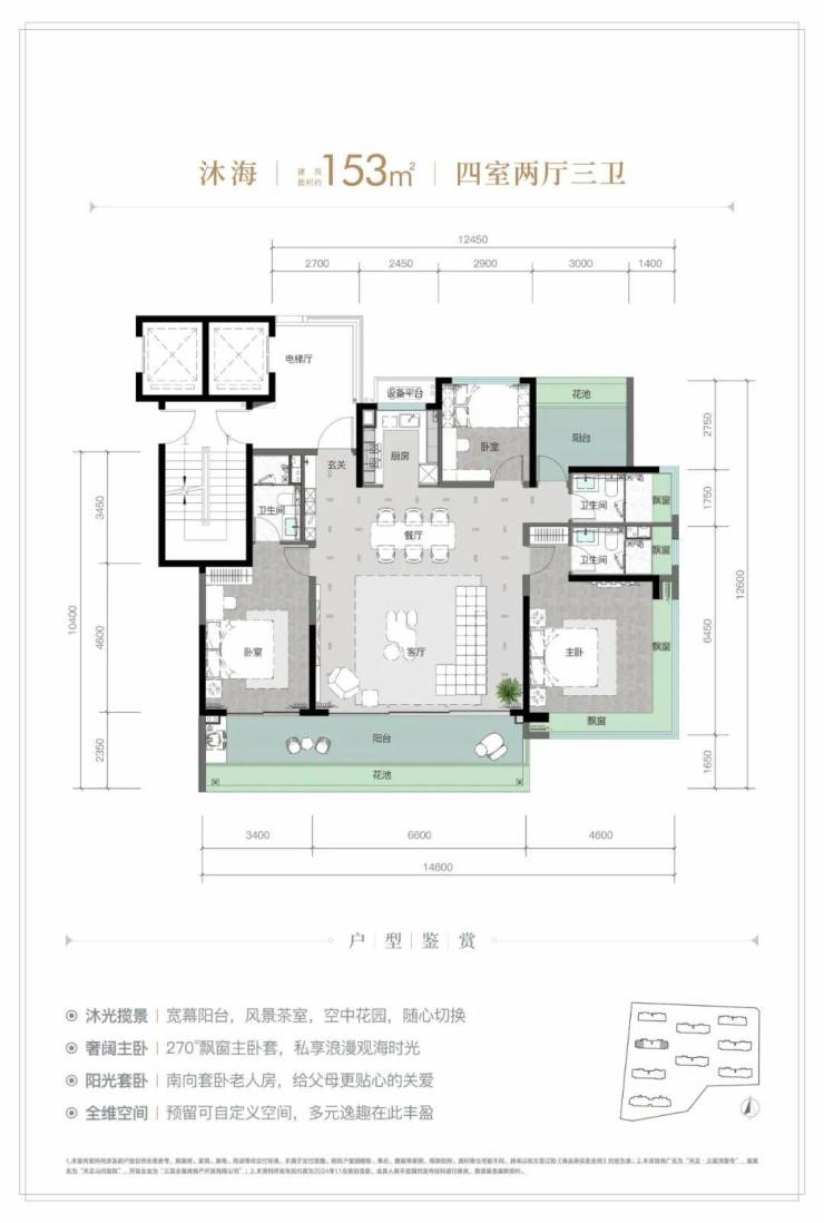
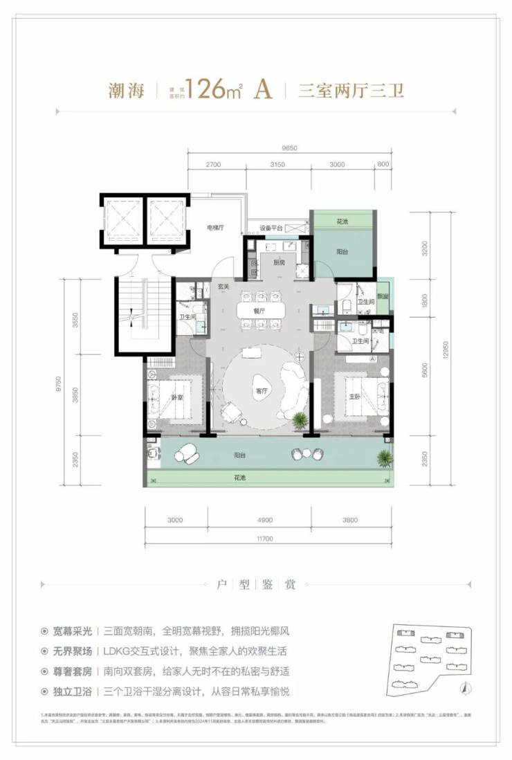
四、户型鉴赏
规划建筑面积约126-213㎡观海奢装大平层,约3.1米阔绰层高,部分户型创新设计270°全景飘窗主卧套、四开间朝南等,全成品高标奢装,营造全新舒居体验。
☎售楼处热线:0898-83090009【营销中心】
☎专属销售顾问:13379999860 【微信同步】
在售户型图丨项目介绍丨最新房源丨周边配套丨详细解答
预约看房可免费享受海南三天两晚酒店吃住、往返机票
更多信息请咨询售楼部!
声明:本文由入驻焦点开放平台的作者撰写,除焦点官方账号外,观点仅代表作者本人,不代表焦点立场。
